70 фото проектов и вариантов расстановки мебели
Многие люди озадачены вопросом, как обставить маленькую однокомнатную квартиру, ведь необходимо выделить спальную зону, оборудовать кухню, вместить всю необходимую технику. Дизайнеры советуют не расстраиваться по данному поводу, ведь даже в таком обычном жилом помещении можно разместить абсолютно все.
Главный критерий планировки современной однокомнатной квартиры – это правильное ее разделение на зоны. Как правило, отделяют зону гостиной от кухни, либо объединяют их вместе. Чаще всего квартира с одной комнатой, это временное решение, так как в будущем люди стремятся переехать в более просторное жилье.

В помощь будет данная статься о том, как небольшое пространство сделать по-настоящему уютным и функциональным.

Краткое содержимое обзора:
Как грамотно разделить квартиру на зоны?
На зонирование помещения влияет ряд факторов. Первым считается, имеются ли дети, ведь в таком случае нужно выделить отдельную детскую зону. Далее встает вопрос о спальне родителей, гостиной.

Универсальным вариантом в однокомнатной квартире будет наличие дивана с раскладывающимся механизмом. В таком случае он будет выполнять роль кровати, на него также можно усадить гостей. Зона кухни чаще всего отделена стеной, и лишь некоторая часть жильцов объединяет ее с остальным пространством, снося стену.

Определенные застройщики предлагают обычные квартиры с одной комнатой, однокомнатные квартиры улучшенной планировки и студии. Плюс последних квартир в том, что жильцам не нужно сносить стены, однако у их возникает трудность именно в правильном зонировании пространства.

Квартира-студия на первый взгляд, кажется просторнее, если ее сравнивать с обычной квартирой. Студия считается более современной, молодежной.
В квартире с объединенным пространством требуется устанавливать хорошую вытяжку, так как посторонние запахи будут распространяться на спальную зону.

В студии, кажется на первый взгляд, достаточно много места для мебели, однако это не так. Дизайнеры советуют не перегружать пространство мебелью, все должно быть минималистично, в то же время функционально.

Спальную зону можно разделить перегородкой из полочек, это современно и создается дополнительное место для декора. Такая же перегородка отлично подойдет для рабочей зоны, для гардеробной.

Стеллажное зонирование к тому же считается не дорогим вариантом, нежели работа с гипсокартоном. Существует множество вариантов планировки, прежде всего, стоит отталкиваться от квадратных метров.

Разделить зону столовой и гостиной можно натяжным двухуровневым потолком или разным покрытием на полу. В последнее время в большинстве однокомнатных квартир это встречается часто.

Вариант перепланировки в однокомнатных квартирах маленьких по площади стоит особенно остро. Чаще всего это дома устаревшие, где для кухонной зоны отведено не более 5-6 метров квадратных. Жильцам в свою очередь приходиться ее увеличивать за счет присоединения к комнате. Отделить столовую от зоны отдыха можно барной стойкой со стульями.

Что касается ванной и туалета, то здесь эти комнаты чаще всего остаются на своем месте. Переделка затрагивает лишь раздельный санузел если он большой по площади.

В таком случае он объединяется, после чего увеличивается полезное пространство. После этого однокомнатная квартира стандартной планировки становится на несколько метров квадратных больше.

Что необходимо учесть при планировке однокомнатной квартиры?
В первую очередь планируя, как грамотно распорядиться квадратными метрами, следует уделить внимание кухне. Данное пространство необходимо разделить так, чтобы разместить на нем обеденный стол, кухонную технику. В зоне готовки наверняка будут исходить различные запахи, поэтому не лишним будет повесить мощную вытяжку.

Отсутствие межкомнатных стен в квартире может принести дополнительные неудобства, а именно будет отсутствовать звукоизоляция, появятся всевозможные запахи, кроме этого возникнет сложность с зонированием пространства.
Если посмотреть на это с другой стороны, то квартира кажется современнее, больше. В этом случае можно отделить зону гостиной и поставить большой стол для гостей. Распорядиться свободным пространством нужно грамотно, чтобы не превратить просторную квартиру в свалку мебели.

Цвет стен, пола и потолков играет большую роль в маленькой квартире. Светлые тона визуально расширяют пространство, добавляют в дом воздух, свет, к тому же в последние несколько лет модным цветом в отделке помещений считается светло-серый или белый тон.

Ознакомьтесь с фото планировкой однокомнатной квартиры, представленной ниже. Возможно, проекты станут вам помощником в объединении пространства.

Планировка однокомнатной квартиры, прежде всего, зависит от того, какой формы площадь, учитывается размер комнаты. Необходимо наглядно представить и мысленно разнести все предметы по углам, для мебели выделить необходимое место. Однокомнатная квартира при грамотном подходе и правильной планировке может стать светлым, уютным гнездышком

Фото планировки однокомнатной квартиры











































Вконтакте
Google+
Одноклассники
Мой мир
Посмотрите еще здесь:
dizainmetrov.ru
Однокомнатные квартиры в новостройках
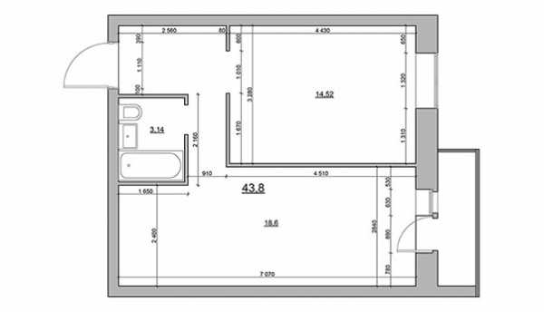
План однокомнатной квартиры в новостройке.
(Нажмите на изображение для увеличения)
Вопрос читателя
Здравствуйте! Очень надеемся на вашу помощь. У нас с мужем строится однокомнатная квартира. Ремонтом будем заниматься с нуля (дом сдается без отделки), хочется сделать все в едином современном стиле, в светлых тонах. Жилая комната узкая и длинная, хочется зонировать пространство, но как расставить мебель для нас вопрос. Хотелось бы иметь уголок для швейной машинки и стол для компьютера в какой-либо из комнат. Очень важна удобная система хранения вещей и всяких полезных мелочей. Не знаем также, куда пристроить стиральную машину, санузел не позволяет поставить ее туда.
Будем признательны видеть подходящий дизайн-проект квартиры.
Заранее спасибо! Токарева Марина.
Ответ дизайнера
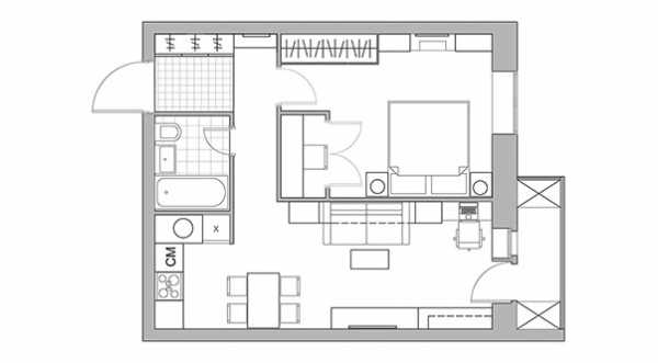
План однокомнатной квартиры с расстановкой мебели.
(Нажмите на изображение для увеличения)
Однокомнатные квартиры в новостройках, как правило, не могут похвастаться большими размерами. Стандартная площадь однокомнатных квартир в новостройках зачастую не превышают 50 кв. м. Зоны определены существующей планировкой — прихожая, спальня, кухня и санузел.
Чтобы сделать однокомнатную квартиру читательницы комфортной для проживания, дизайнер Лидия Никитина предложила пренести кухню в большую комнату и совместить ее с гостиной, а под спальню отдать меньшее помещение. В качестве основных цветов дизайнер выбрала нейтральную гамму, которая не напрягает и не утомляет глаз, — белый (потолок, стены, мебель) и различные оттенки коричневого.
Главная концепция проекта — много света и воздуха — обозначена уже в прихожей. В ней нет ни вешалок, ни галошниц. Для хранения одежды и обуви предназначен узкий высокий шкаф. Зеркальные дверцы делают его незаметным и расширяют пространство.
Особое внимание дизайнер уделила балкону. Так как шкафов никогда не бывает много, она рекомендует разместить там дополнительные шкафы (например, для хранения сезонной одежды и обуви).
Интерьер кухни предельно лаконичен, вся бытовая техника (стиральная машина, электрическая плита и духовой шкаф) встроенная, холодильник спрятан в шкаф. Обеденный уголок расположился на границе двух зон — кухни и гостиной.
Еще недавно пластиковые стулья можно было увидеть только в дешевых столовых. Новые материалы и технологии изменили их вид, и они появились в наших кухнях.
Гостиная зона представлена мягким диваном и большим телевизором напротив. Комбинация шкафов вокруг дивана позволяет разместить большое количество вещей, что отвечает запросу нашей читательницы, при этом системы хранения не утяжеляют пространство. Возле окна дизайнер выделила место для компьютерного стола.
Как оформить ТВ-зону в современном стиле? Самый простой способ — повесить телевизионную плазму на стену, а рядом расположить модульную систему хранения.
В спальне дизайнер разместила несколько систем хранения — двухметровый шкаф и стеллажи, на которых можно разместить либо книги, либо какие-то сувениры. Согласно особому пожеланию хозяйки (у нее есть хобби — рукоделие, и она просила найти место для швейной машинки) в спальне была обустроена рабочая зона для кройки и шитья — она спрятана в нишу.
Между стеллажами встроен свечной камин, который создает в комнате ощущение уюта и умиротворенности.
В этом проекте использован потолочный светильник, спроектированный дизайнером Джузеппе Маурицио Скутелла. Его, как и его собратьев, можно легко найти в наших магазинах.
Чтобы оживить рабочее место, выберите цвет, который будет вас вдохновлять. Возможно использование ярких фотографий, доски для заметок или настенных органайзеров.
В роли контейнеров для хранения разных мелочей могут выступать и декоративные сундуки, и коробки из древесины или картона.
www.4living.ru
Планировки 1 комнатных квартир. Фото вариантов
Начиная с шестидесятых годов двадцатого века, дома начали строиться по типовым проектам. Планировки 1 комнатных квартир во многих крупных городах России практически ничем не отличаются друг от друга. Если вы занимаетесь куплей-продажей недвижимости или просто планируете продать или купить квартиру, то необходимо знать какие бывают планировки 1 комнатных квартир для того, чтобы правильно оценить жилье. Важно знать, чем отличаются «улучшенки» от хрущевок. Каждая планировка имеет свои особенности, которые необходимо знать, прежде чем остановить свой выбор на каком-то варианте.
Планировки 1 комнатных квартир в хрущёвках практически ничем не отличаются друг от друга. Незначительно у них отличается площадь. Чем новее дом, тем просторнее квартира, если можно говорить о просторности квартиры, площадь которой не превышает 30 квадратных метров.

Стандартная планировка 1 комнатной хрущёвки.
Если говорить про планировки однокомнатных квартир в домах улучшенного типа, то они имеют некоторые различия. Например, в одном варианте есть две лоджии, что позволяет увеличить за счет одной из них кухню, сделав небольшой кабинет или зимний сад.
Правда, не стоит убирать полностью перегородку, иначе это может привести к штрафам за перепланировку. Стоит также обратить внимание на то, что планировка 1 комнатных квартир такого типа имеет в комнате небольшой аппендицит, в который можно поставить диван и отделить визуально гостиную от спальной зоны. Особенно это удобно для семей с ребенком.

Современная планировка 1 комнатной квартиры-студии.

Второй вариант планировки современной 1 комнатной квартиры студии.

Современный вариант планировки 1 комнатной квартиры.
Если сделать раздвижные стены, то у малыша появится своя небольшая комната с окном. Планировка 1 комнатных квартир второго варианта обладает достаточно большой квадратной кухней, в который идеально встает кухонный уголок. В такой кухне даже можно принимать гостей. Также стоит отметить наличие удобной кладовки, которая располагается около входа. Здесь можно сделать гардеробную, если поставить встроенный шкаф.
Планировка 1 комнатных квартир зависит от того, где располагается квартира – в углу дома или в его середине. От этого же зависит и количество окон в квартире. Все дома таких серий строились примерно в восьмидесятых и девяностых годах двадцатого века. Если говорить о планировках квартир в домах, которые являются более современными, то они почти ничем не отличаются от второго варианта, кроме как площадью.
www.delairemontsam.ru