Арочный дом
Белорусская компания разработала уникальный строительный стартап по производству домов с необычной архитектурой. Их проект малоэтажного дома уже стал лауреатом национального конкурса архитектуры и призером Active House 2017 в номинации за лучший дизайн. Tamago 115, у которого вместо стен округлая крыша, — не только продукт архитектурной мысли. В основе проекта лежит изобретение, позволяющее строить энергоэффективные здания купольной, шатровой и полусферической формы. Мы встретились с создателями Тamаgо и узнали, почему они называют его «антибиотиком от строительства», когда построят прототип и сколько будет стоить такое жилье.
Изобрели еще одно колесо
Все началось с того, что Константин Урбановский, конструктор и бизнесмен в одном лице, придумал, как сделать стрельчатую арку (представляет собой фигуру из двух полукруглых арок, пересекающихся под некоторым углом) из двух сборных деревянных балок. Зачем? Чтобы можно было без привлечения спецтехники строить здания с купольной крышей.
Главная часть технологии — элементы UrbanBlock, из которых собирается балка. Они представляют собой наборные элементы из влагостойкой фанеры. Каждая ламель вырезается на станке и имеет небольшой радиус. Ламели собираются в блоки и скрепляются металлическими шпильками и болтами. Получается деталь небольшого размера, весом около 20 кг. Эти блоки собираются в «шип-паз» в радиусную («согнутую») балку нужной длины. Если балки состыковать, то получается требуемая арка. Размеры блоков унифицированы, и, по сути, это конструктор. Последовательное соединение элементов позволяет создать самонесущий каркас дома.
В отличие от российских купольных домов под торговыми марками «Добросфера» и «Скайдом», которые собираются из прямолинейных элементов, сооружения из UrbanBlock лишены главного недостатка — видимых «ребер» конструкции.
Купол от «Добросфера»
Было принято решение запатентовать разработку Константина Урбановского. Выяснилось, что изобретение уникальное и никто в мире еще до такого не додумался. — Это как придумать колесо, — шутит Яна Урбановская, основатель молодой компании «Тамаго». — Сейчас блоки имеют статус изобретения, мы занимаемся патентной защитой в 151 стране, а также получением международных сертификатов. Опробовать технологию решили на малых архитектурных формах — весной 2017 года под Гомелем рядом с экспериментальным производством была собрана беседка. На ней команда изобретателя изучала возможности конструкции. Она показала себя очень хорошо.
Беседка из UrbanBlock
— Далее мы разработали архитектурный проект беседки, в основе которой были заложены эти стрельчатые арки, — рассказывает гендиректор компании Дмитрий Альхимович. — Получилась очень надежная и привлекательная конструкция. В результате мы поняли, что это перспективное направление, и зарегистрировали компанию Тamago (в переводе с японского — «яйцо»). Мы продолжили работу над архитектурой и изучением области применения технологии UrbanBlock. Оказалось, что они практически безграничны. Можно строить здания абсолютно любой формы: полусферы, здания купольной, конусной, шатровой формы, комбинации различных форм и размеров.
Проект дома на 76 квадратных метров
У проекта есть несколько направлений. Первое — это частное жилье. К нему относятся проекты домов, бань, беседок. Второе — это объекты для городской среды. Тamago предлагает инновационные решения по модернизации городских объектов. Например, у нас уже есть варианты для надстройки мансардных этажей на крышах хрущевок.
Отдельное направление — это проекты объектов общественного питания. Стоит отметить, что интерес к проекту нешуточный — в команде разработчиков трудится известный архитектор Лев Агибалов.
Дом в контейнере
Развитие идеи — в создании заводского производства домокомплектов, которые можно отправлять клиенту в контейнере. То есть человек заказывает дом, его изготавливают, добавляют выбранные опции и отправляют. На месте его собирают монтажники под ключ.
Проект Tamago 115
Домокомплект — это настоящий конструктор с определенным набором деталей. Все элементы пронумерованы и указаны в инструкции по сборке. Подрезать что-то, докупать нет необходимости. После сборки остается лишь мусор в виде упаковки. Заказал, собрал и живешь — комплект полный, со всеми коммуникациями, отделкой и даже встроенной мебелью.
Площадь дома — 115 квадратных метров
— В мире есть примеры реализации подобной идеи, но единичные, — говорит Дмитрий Альхимович. — Проблема в том, что традиционный дом собирается из длинномерных и крупногабаритных элементов, поэтому загрузить его в контейнер иногда физически невозможно. Наш домокомплект можно назвать мелкоштучным, и в разобранном виде он компактно помещается в морской контейнер. Унифицированный элемент (UrbanBlock) позволяет легко просчитать необходимое количество для заказанного каркаса с точностью до единицы. Модульные размеры элементов — 600−1200 мм — позволяют осуществлять монтаж вручную без использования подъемных механизмов, что существенно снижает стоимость монтажа.
Создатели называют свой проект «антибиотиком от строительства». — Как только человек говорит «хочу дом», то он тут же становится участником квеста, в котором нужно сначала найти архитектора, потом пообщаться со строителями, периодически ругаться за срыв сроков и качество работ, расстраиваться из-за постоянно увеличивающейся сметы. Сплошной стресс. Наш продукт позволяет миновать всех этих людей. Просто пришел и, как в автосалоне, выбрал из нескольких проектов подходящий, заказал нужные опции: кровля — дранка, черепица или металл, цвет серый, белый или любой другой, мебель. Строители нужны только на этапе изготовления фундамента. Сборку же осуществляют сертифицированные монтажники. Собрать дом в зависимости от размеров можно будет за 2−4 недели. И это уже будет полностью готовое жилье.
Когда построят первый дом?
Сегодня команда строительного стартапа работает над реализацией дома по проекту «Тамаго 115». На нем будут отработаны все этапы производства и сборки — сейчас идет работа над созданием всех технологических карт. Чтобы вывести производство домов на поток, каждую деталь, действие нужно описать.
Презентация дома должна состояться в августе 2018 года в Милане. Участок для него уже выбрали — в Молодечненском районе на берегу реки Удранки, в живописном месте у леса. Для прототипа будет изготовлена шведская утепленная плита (хотя он может возводиться и на более дешевом свайном фундаменте).
Только поточное массовое производство дает возможность снижать себестоимость. Дом не будет дешевым потому, что при его сборке используются высококачественные материалы и высокотехнологичное инженерное оборудование. Новые технологии позволят получить высокую энергоэффективность дома, таким образом свести коммунальные расходы к минимуму. Дом будущего, гаджет. Этот дом должен быть отражением рациональности.
— Сегодня готовый дом Tamago 115 оценивается из расчета 1200 евро за квадратный метр, — говорит Яна Урбановская. — И эта цена нормально воспринимается потенциальными заказчиками в Эстонии, Польше, Германии, Финляндии и России. Однако эту стоимость реально снизить до приемлемых 500−600 евро при промышленном производстве.
Активный, энергоэффективный
Кроме высших наград национального архитектурного конкурса, у проекта уже есть и международный успех — он стал призером конкурса Active House 2017 (Active House — международный альянс, продвигающий энергоэффективные технологии) в номинации за лучший дизайн.
— Следующей осенью нас ждут на миланской выставке Active House, но уже с готовым домом, — говорит Дмитрий Альхимович. — Чтобы победить в этом конкурсе, нам нужно собрать дом, который будет отвечать высшим европейским критериям энергоэффективности.
Разработчики утверждают, что их дома способны производить энергии больше, чем потреблять. Такое возможно благодаря применению энергоэффективных технологий и самой архитектуры.
— Всем известно, что чем меньше в здании площадь охлаждаемых плоскостей, тем меньше у него теплопотери. В этом плане купольные дома серьезно выигрывают у традиционных прямоугольных зданий с треугольной крышей. Энергопотребление у них минимум на 20% меньше только за счет архитектуры.
Дома планируется оснастить приточно-вытяжной механической вентиляцией с рекуператором, тепловым насосом «воздух-вода» для отопления и фотовольтаикой на кровле для выработки электроэнергии. Инженерные решения будут применяться самые новые с учетом их развития в ближайшее время. То есть они не устареют в ближайшие пять лет.
Высокие показатели энергоэффективности достигаются и солидной толщиной слоя минераловатного утеплителя в стенах-крыше здания — 30−35 см.
Отличия от обыкновенного «каркасника»
— Если наложить друг на друга проекции традиционного дома и Tamago 115, то мы видим, что полезная площадь в них практически одинаковая, — объясняет разницу Дмитрий Альхимович. — А вот если сравнивать строительные объемы, количество строительных материалов и видов строительных работ, то у сводчатого дома эти показатели меньше на 15−20%. Дело в том, что для арочной конструкции не нужны внутренние несущие стены, размещение перегородок внутри сводчатой оболочки свободное. В его конструкции нет кровельных свесов, мауэрлатов, водосточной системы, узлов соединения крыши и несущих стен. А это существенная экономия материалов при строительстве несущей конструкции. Нет и затрат на отделку фасада.
Для строительства каркасного дома потребуется больше материалов на стоечно-балочную конструктивную систему, плюс подкосы, диагонали жесткости, балки… Если мы зададимся целью и построим Tamago с применением аналогичных материалов, которые используются для бюджетных каркасников, — 15 см утеплителя, дешевая битумная кровля, бюджетные оконные системы, — то стоимость нашего дома будет даже ниже. Но строить дешевые дома мы не собираемся и конкурировать с производителями каркасных домов не планируем.
Кто на новенького?
Разработчики из «Тамаго» говорят, что в нашей стране к новой архитектурной форме относятся с интересом, дома нравятся, но массово становиться «первооткрывателями» не хотят.
— Существует стереотип, как должен выглядеть традиционный дом, и перешагнуть через это трудно,— говорит Дмитрий.
— Но у нас уже есть первый белорусский заказчик — он будет ставить дом в Тарасово под Минском. Участок у него на горе с перепадом высот в 10 метров. Так что «Тамаго» буден виден издалека.
Кроме домов, будет налажено и производство беседок — на них уже есть спрос.
Tamago на выставке «Будпрогресс»
Впрочем, нельзя сказать, что производитель купольных домов рассчитывает только на белорусских заказчиков. Tamago изначально ориентирован на европейский рынок — там есть спрос на такую архитектуру. На наш рынок компания планируют заходить уже как европейский бренд.
— Сейчас в стране нет условий, чтобы заниматься производством, проектированием домов для нашего рынка. Поэтому мы начнем там, а потом придем сюда. Производство элементов UrbanBlock будет в Беларуси, а поставляться они будут в дилерско-логистические центры в Европе (первый планируется создать в Эстонии). Там они будут комплектоваться материалами и оборудованием производителей, которые работают на рынке дилера. Со стороны профессионального сообщества проект Tamago получил одобрение. Теперь для реализации задуманного разработчики уникальной технологии ищут инвестора.
td-termobar.ru
Красивая арка в частном деревянном доме
Деревянный дом – это сказка. Представьте на секунду, какое счастье, зайти в помещение с деревянной отделкой внутри, ощущать этот характерный запах природы и атмосферу натуральности. Дерево приятно трогать, на него приятно смотреть. Стиль интерьера с деревянной отделкой становится неважен, в сравнении с необычайным комфортом и красотой, которую дарит материал.

Арка в деревянном доме
Хорошим украшением, добавляющим некоторой аутентичности, будет арка в доме. Причем ее можно делать в любой части, да хоть во всем помещении. Представленные фото арок в доме из дерева – это примеры самых разных категорий сложности. Конечно, хорошо, когда есть навыки в плотническом деле, тогда легко можно сделать оформление арки дома по своему вкусу в самом разном направлении.
Арки в частном доме – это скорее элемент интерьера, она не несет функциональную нагрузку, но без нее проход смотрится достаточно уныло. Поэтому, если деревянный дом куплен для отдыха, если он должен приносить радость, удовольствие и отдых, давайте пробовать создать там нужную атмосферу. Арки в деревянном доме в данном случае будут важным атрибутом визуального комфорта. Поэтому смотрим фото и пробуем изготовить красивую арку в помещении.

Начало работы
Как сделать арку в доме? В данном случае можно пойти по одному из двух путей. Первый – самостоятельно совершать непростые работы с деревом, приводя массив в нужное состояние, делая расчеты и прочее. Либо нанять мастера, который вырежет из дерева все необходимые арки в доме.

Второй – приобрести готовую продукцию и установить ее. Но, какой из вариантов будет правильным? Здесь уже все зависит от самого помещения. Безусловно, если использовать уже готовую арку, нужно четко понимать размер проема, позволят ли габариты арки разместить ее устойчиво в сводах дома. Это очень важно, поэтому, решая впоследствии иметь дом с аркой, если все еще только на стадии строительства, стоит договориться о некоторых изменениях проекта, чтобы внести в них этот элемент.

Формат
Мы все привыкли видеть арки в виде конструкции перехода или коридора, входа, выхода — неважно, с полукруглой верхней частью, а ведь на самом деле конструкций арок много. А теперь с нынешними возможностями в строительстве их стало еще больше. Из дерева можно делать прямоугольную арку. Причем самое интересное, ее можно организовать своими руками даже достаточно качественно. Главное – правильно замерить место ее расположения и разобраться с материалами. Для прямоугольной арки нужно немного. По сути, правильно подобрать коробку, затем ее правильно задекорировать. Для этого существуют самые разные растворы, краски, лаки, а также дополнительные деревянные элементы.

Немного сложнее будет именно та самая классическая арка. Она будет состоять из нескольких элементов, которые потом собираются в определенную конструкцию. Самое главное – это свод. Арочный свод должен быть выполнен из специально обработанного дерева уже с определенной необходимой формой.

Есть также неформатные арки — достаточно креативные и необычные конструкции, которые могут служить не только как декоративный элемент интерьера. Например, если место прохождения очень широкое, можно установить частично арку с прилегающей к ней полкой или удобным шкафчиком. Это достаточно оригинальное и функциональное решение, которое позволит не только наслаждаться визуальной эстетической красотой, но и удобно использовать появившееся пространство.
Также есть еще несколько необычных вариантов арок. Их можно посмотреть на фото. Например, необычно будет смотреться арка с вогнутыми боковыми планками. Кстати, сразу стоит отметить, что этот элемент значительно расширяет проем, даже визуально увеличивает пространство. Поэтому его можно организовать в небольших коридорах. Есть еще вариант такой «избушечной» арки, когда под сводами она соединяется, образуя как бы крышу избы. Это очень оригинальный несколько этнический способ. Однако при общей отделке деревом такая арка будет смотреться очень эффектно и красиво. К тому же там, под сводом, можно будет установить точечное освещение. В итоге будет вполне оригинально.

Варианты
Безусловно, необязательно арка должна быть деревянная, но, если в интерьере преобладает дерево, лучше не экспериментировать. Другое дело, если внутри деревянного дома интерьер выполнен в стиле хай-тек или другом, использующим не столько деревянную отделку. Тогда арку вполне можно выполнить из пластика, гипсокартона, металла. Мало того, есть кованые арки для внутреннего оформления интерьера. Они весьма красивы и, несмотря на холодность, могут очень органично дополнять общую атмосферу.

Итак, мы определились с главным направлением в организации арки. Если дом внутри имеет деревянную отделку, то лучше аналогичного свода не найти. В случае когда внутренняя часть в основном отделана другими материалами, можно и арку использовать из других компонентов. Главное – гармония и органичность в сочетании.
dekormyhome.ru
Арочный дом для дачи – недорогая постройка — каталог статей на сайте
Вкладывать значительную сумму в дачный домик большинство хозяев не расположено – все-таки это не загородный дом, в котором семья проживает постоянно, а временное пристанище, используемое, в основном, в летнее время.

Комфортности такого строения достигнуть легче: минимальные удобства обязательны, но нет надобности обустраивать полноценное отопление, зимнее утепление, кондиционирование и т.п. Вариантов, отвечающих требованиям, много, один из них – арочный дом. Это строение недорогое, простое в возведении и оригинальное по конфигурации.
Что такое арочный дом
Полукруглое строение снаружи напоминает небольшой ангар. Некоторым дачникам фасадный дизайн не важен, другие с помощью дополнительных конструкций и отделки минимализируют это сходство. Но, в любом случае, строительство обходится дешевле и осуществляется быстрее, чем возведение традиционного дома (из кирпича, блоков, дерева, пр.).

Первое, на чем удается сэкономить – фундамент. Для арочного дома используются легкие материалы, поэтому для него достаточен обычный столбчатый фундамент. Возможен также винтовой или плитный небольшой толщины – все это рассматривается с точки зрения особенностей участка.

Основной материал для возведения конструкции – металл. Это не значит, что арочный дом невозможно построить из дерева (использовав, например, деревянные клееные арки) или других материалов. Но металл наиболее удобен даже с точки зрения разновидности изделий: – профили, трубы, профнастил – все это можно сварить и скрепить в прочную, легкую конструкцию.


Можно приобрести и готовый комплект арочного дома – с каркасом из дуг, плитами для пола, утеплителем, кровельными панелями, крепежом, пр.

Утепление арочного дома
Важный этап в строительстве арочного дома – утепление. Казалось бы, домик для летнего проживания утеплять незачем. Но металл хорошо проводит тепло, быстро нагревается и остывает, в результате чего ночью или в дождливую погоду в домике будет холодно. На солнце же металлическая конструкция быстро разогреется, и внутри помещения будет и жарко, и душно. Поэтому теплоизоляция необходима. К тому же, она выполнит и роль звукоизоляции, а это очень нелишне, так как металл хорошо проводит не только тепло, но и звук. Теплоизоляция в этом случае может быть использована, как рулонная (минеральная вата, к примеру), так и плитная (пенополистирол, пр.).


Отделка дачного домика арочного типа изнутри
Отделочные материалы каждый выбирает, исходя из своих возможностей и предпочтений. Самое простое, что можно порекомендовать – обшить домик изнутри вагонкой или гипсокартоном (с последующей покраской, поклейкой обоями и т.п).

Хочу больше статей:
Tags:
крепеж профлист утеплительwww.domstoy.ru
Арочный дом — доступное жилье стоимостью от $ 1000
Очень часто, разглядывая каталоги с недвижимостью, мы невольно вздыхаем, понимая, что не в состоянии позволить себе ее. Альтернативу дорогостоящему жилью предлагает фирма, специализирующаяся на строительстве арочных домов. Такое жилье очень быстро строится, и, при этом, его ценовой диапазон колеблется от 1000 до 5000 долларов.
Арочный домик стоимостью $ 1000.
Арочный дом фирмы Arched Cabins.Фирма Arched Cabins занимается разработкой и строительством арочных домов из оцинкованной стали. В стандартный комплект, который можно приобрести для строительства подобного жилища, входят напольные плиты, каркас из дуг, изоляционный материал толщиной 13 мм (для холодного климата толщина может быть 25 мм) и панели для двухскатной крыши со всеми крепежами.
Арочный дом — альтернатива дорогим постройкам.Размеры подобных арочных домов варьируются от 3,7х7 метров и до 4,5х10 метров. Гофрированная наружная обшивка построек рассчитана на сильные порывы ветра и давление снега (13 кг на 1 кв. м.). Разработчики утверждают, что это не обычный металлический навес, который согнется при первом снегопаде.
Пример интерьера в арочном доме.
Арочный дом. Интерьер.Эти арочные конструкции можно использовать не только в качестве жилищ, но и как мастерские, дома престарелых, гаражи.
Цена арочного дома варьируется от 1000 и 5000 долларов.cpykami.ru
Въездная арка в современной архитектуре частных домов

Дизайнерская арка между гаражом и домом
Многим из нас незнаком термин porte cochere, но в нём нет ничего необычного. В переводе это обозначает крытые въездные ворота для автомобиля (в старину для карет) со сквозной дорогой.
Она может быть расположена как перед парадным входом, так и с любой стороны от здания, а в некоторых интересных проектах домов повторяется старинный французский шик, когда порт-кошер установлен в качестве ворот. Но чаще всего они используются на пути к гаражу.
Такой архитектурный приём является не только визуально привлекательным, но и имеет некоторые положительные свойства, а какие именно, вы сможете узнать ниже.

Крытый подход с боковой стороны оформлен самым оригинальным способом, Green Button Homes LLC, Сан-Диего
Этот проект является чем-то средним между классическим и современным стилем. Здесь есть всё: выступающие стропила, элегантные изгибы. Согласитесь, это выглядит привлекательно, но и полезно, поскольку подъезжая к дому в непогоду, вы будете уверены, что не намокнете, выходя из автомобиля.
Такие пристройки достаточно большие, чтобы ваше авто свободно проходило под ней, да и стоит учитывать возможность проезда другого, более габаритного транспорта. Например, когда вам доставляют мебель. Гораздо интересней оформлять porte cochere в аналогичной манере с архитектурой вашего жилья.

Образ, который очаровывает своей неординарностью, RJ Elder Design, США
Современный шикарный дом может иметь самый разнообразный вариант такой пристройки. На иллюстрации ниже очень эффектно подчеркнуты колонны, держащие на себе всю конструкцию крыши. Отделка камнем, фрагменты дерева и насыщенные природные тона смотрятся очень привлекательно.

Защита от плохой погоды перед парадным входом, резиденция Live Oak Canyon от HartmanBaldwin Design/Build
Это прибережный коттедж впечатляет своей гармоничной архитектурой, здесь каждый фрагмент выглядит аккуратно и продумано.

Великолепная дорожка от шоссе к гаражу, Witt Construction, США
Арочные своды характерны для старинного французского стиля, а если в проекте использовать органичные материалы, то результат впечатлит даже самого искушённого зрителя.

Красивые и функциональные особенности, Sanders Architecture & Design, Хьюстон
Если porte cochere расположен с боковой части дома, вам следует позаботиться о лестнице, которая проведёт вас к входу с другой стороны.

Соблазнительная крытая структура резиденции в Атланте
В этом проекте радует взор изогнутые перила, фигурные колонны. Данный вариант подходит для современного дома, поскольку все архитектурные детали выражают минималистичный подход и изысканный вкус.

Великолепная конструкция в виде лёгкой пристройки, Сан-Франциско
Этот вариант красиво обрамляет подъезд, элегантная каменная кладка, арочные проёмы и открытые стропила демонстрируют неповторимый французский шик старинных замков, адаптированный под современность.

Классический проект The Cliffs Vineyards от Summerour Architects
Рorte cochere приводит к отдельно стоящему гаражу, который примыкает к задней части строения.

Изысканный викторианский экстерьер от Mockler Taylor Architects
Такое изысканное дополнение к проекту вашего современного дома мечты имеет множество преимуществ. Кроме практичных свойств, соблазняет его визуальная привлекательность, делающая экстерьер более благородным и изысканным.
interiorsmall.ru
Арка – как проезд во двор дома
Арка – как проезд во двор домаАх, Арки — арочки! Сколько про них написано в последние годы. Арка во двор, подворотня, целые системы проходных дворов через арки. Сколько их в старых районах Москвы, не счесть!

Арка въезда во двор двухэтажного дома на Школьной улице
Воссозданные купеческие дома на Школьной улице можно считать энциклопедией арочных въездов во дворы. В центре каждого дома устроен проезд. Форма перекрытия арки самая разная, от классической арки до элементарной прямой балки.
Сквозные арки для проезда с улицы во двор появились в России, скорее всего где-то в середине XVIII века, когда начали строить здания без разрыва между домами.
Усадебная застройка предыдущего времени не нуждалась в подобных приемах, дома строили свободно, с разрывами между сооружениями. Застройка улиц «сплошным фасадом» появляется в послепетровские времена в крупных городах. И где-то в те годы появляется и проезд во двор, «прорубленный» на первом этаже дома.

Кадашевская набережная.
Фото 1971 г. из книги: «Памятники архитектуры Москвы, Замоскворечье»
Первоначальная, в основе ещё с 1780-х годов, застройка «сплошною фасадою», что для Москвы конца XVIII века необычно. Купеческие дома на Кадашевской набережной строились на узких, вытянутых с севера на юг участках и смыкались в одну линию вдоль набережной. И конечно – торговые помещения располагались на первом этаже и жилые на втором. И каждый дом имел арку для въезда во двор.
В дворянских зданиях Москвы XVIII века я не могу припомнить сквозные проезды. Думаю, что подобное решение просто не могло придти в головы в то время – проезжать во двор под зданием. Его же спокойно можно было объехать и попасть во двор через ворота около дома.
Но вот в усадьбе Лунина на Суворовском бульваре уже появляется подобный въезд. Небольшой двор за корпусом, конечно, требовал въезда, но ведь его можно было устроить с Калашного переулка?


Но был запроектирован сквозной проезд под зданием. Повторяю – в классическом особняке, даже в начале XIX века, во времена Ампира, такое решение единичное.
Может быть — мои читатели смогут найти другие примеры?
Но к середине XIX века уплотнение застройки и создание сплошных фасадов вдоль улицы уже активно потребовали устройства сквозных проездов под домами. И начали появляться наши любимые арки.
Наиболее интересны проезды в двухэтажных домах, построенных для московских купцов в начале XIX века. Дом включал в себя торговые помещения на первом этаже и жилые комнаты на втором. Проездная арка обычно располагалась по центру дома, но случались и другие решения. До наших дней дошел целый ансамбль подобных купеческих домов в районе Алексеевской слободы, на Таганке.

Комплекс домов начала XIX века на Большой Алексеевской улице (ул. А.Солженицына)

Арочный проезд во двор виден в центре каждого дома
В Рогожской слободе были целые кварталы с такой системой застройки. На современной Школьной улице, которая была воссоздана как музейный комплекс, можно детально рассмотреть все эти интересные здания.

И арки самых разных форм.
На данном снимке две ближайшие арки относятся к типу – сегментная арка

И снова Школьная улица. Ритм арочных окон и полукруглая арка въезда во двор
Необходимо сказать, что в ХХ веке наш язык так обновился, что многие понятия нашего времени уже не соответствуют словарю классицизма и вообще прошлых лет. Есть классическое определение слова «Арка», и звучит оно так – «криволинейное перекрытие проема в стене или пространства между двумя опорами….»

Но сегодня, говоря о проездных и проходных арках, устроенных в первых этажах домов, мы акцентируем свое внимание не на форму арки, а на сам факт сквозного прокола в здании.
И на нескольких примерах я постараюсь разъяснить суть противоречия.
Во второй половине XIX века в строительстве начинается период активного применения железобетонных и металлических конструкций для перекрытий, балок и так далее. Традиционная арка, которая характерна именно для стен из штучных материалов – камня и кирпича – начинает заменяться железобетонной или металлической балкой. И проще и дешевле.
Но традиция устройства въезда или входа через АРКУ сохраняется на многие десятилетия. И получилась веселая нелепица, при которой мы традиционно называем арками въезды во дворы, устроенные в толще первого этажа здания. Хотя конструктивно это уже не арочные конструкции – а балочные. Сплошь и рядом такие проезды декорируются ложными арками для создания традиционного образа.
Вот такие пироги!

Въезд во двор дома на Цветном бульваре. Проезд перекрыт с помощью металлических балок,
а со стороны фасадов выполнена декоративная сегментная арка
Да ….. сегодня все мы полюбили арки — арочки! Полюбили – как часть образа Старой Москвы.
Так же со второй половины XIX века в Москве активно началось строительство домов с внутренними дворами, дворы-колодцы стали неотъемлемой часть не только Питера, но и Москвы. Из множества примеров я хочу показать один снимок, сделанный недалеко от памятника Пушкину.
Взгляд через три проходных двора и четыре арочных проезда.
На этой совершенно случайной фотографии весь этот уникальный переход от Козицкого переулка в сторону Пушкинской площади виден во всех деталях.

Цепочка проходных дворов от Пушкинской площади до Козицкого переулка.
Это красивая внутриквартальная улица!
А в наши дни еще и наполненная кафишками и ресторанчиками, то есть людная улица

Вот так выглядит все сверху!

Двор-колодец, один из цепочки проходных дворов
Но самый расцвет проходных дворов, проездных арок, дворов-колодцев приходится на рубеж веков, с конца XIX века и до 1914 года. Последние жилые многоэтажные дома в стиле эклектики и модерн – вот в этих домах количество арок превыше всего. Арки чисто функциональные, можно сказать – скромные, и арки шикарные, призванные показать высокую категорию дома. Мол, чем шикарнее входная арка, тем выше престиж жителей дома. Вот один из таких домов на Пушкинской улице, 9 (Большая Дмитровка), дом с магазином «Чертежник», очень популярном у студентов МАрхИ в шестидесятые годы.

Шикарная, декорированная лепниной арка на Пушкинской улице

Еще один вид из внутреннего двора на арку въезда. Ордынский туп. 6.
По архитектуре это арка скромная, деловая.
Пример классической полукруглой арки,
которые в многоэтажных домах на рубеже веков встречаются не часто

Это не дворец сказочного принца,
а всего лишь арка въезда во двор дома, построенного на ул. Горького, 6. (Тверская).
Арка по всем правилам классической архитектуры, и даже украшена кессонами,
недаром это время «освоения классического наследия».
Вид на Саввинское подворье

Арка въезда во двор дома на Большой Садовой, 10.
Сегодня это место знают все москвичи, ведь впереди виден двор музея Булгакова
Въездная арка, по типу «трехцентровая» — весьма распространена во времена модерна.
Место это многие годы было известно только отдельным любителям. Но сегодня во дворе находятся сразу два музея писателя Булгакова, и очень много посетителей. Как-то в былые годы я заглянул сюда, мои эмоции о прогулке — в рассказе: Однажды весной на Патриарших

И, напоследок – проезд во двор жилого дома на Кутузовском проспекте.
Много лет я входил во двор к своим школьным приятелям через эту арку,
и только теперь понимаю, как чудно изменился наш язык в ХХ веке.
Ведь арки-то здесь и нет!
А как правильно назвать такой проезд внутри здания во двор? Я даже и не знаю. Мы все настолько привыкли к слову арка, что замену придумать сложно. Последний вопрос я обращаю к моим читателям, которые – я это уже понял – весьма подробно умеют разобраться в самых запутанных проблемах и найти неожиданный ответ.
architectstyle.livejournal.com
Необычный дом в виде арки удивительно размещенный на сложном участке
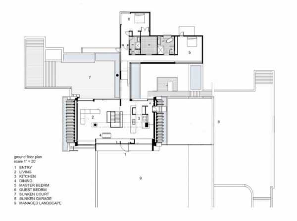
Дом в виде арки с металлической крышей поднимается над травянистым склоном в Ист Хэмптоне, Нью-Йорк, США. Дом был разработан и завершен компанией Maziar Behrooz Architecture для молодой пары и их двух собак. Дом состоит из двух уровней, а его общая площадь составляет 595 квадратных метров. Его индустриальный экстерьер является результатом адаптации дома на участке, который в свою очередь расположен недалеко от местного аэропорта. В то время как в арке находятся гостиная, столовая и кухня открытой планировки, остальная часть дома, которая располагается в нижнем объеме вмещает в себя кабинет, семейную комнату и гараж.



















Не нашли то что искали? Попробуйте поиск по меткам:
бетон в интерьере, высокие потолки, гостиная с большими окнами, декорация открытого пространства, деревянные полы, индустриальный экстерьер, интерьер коридора, кожаная мебель, кухня в стиле минимализм, ландшафтный дизайн участка, металл в экстерьере, минималистская лестница, необычная лестница, необычный дизайн дома, необычный интерьер, необычный экстерьер, открытая планировка гостиной, подвесная лестница, проект дома, современная гостиная, современная кухня, современная мебель, современный интерьерwww.usualhouse.com