Компактный интерьер квартиры-студии 33 кв. метра
Смотреть фотогалерею … фото
4 9 10 1
Спальня выделена из общего пространства, что позволяет спокойно отдыхать ночью, и в то же время она не уменьшает общий объем помещения. Вдобавок квартира выглядит очень стильно и современно, элегантный компактный интерьер удовлетворит самому изысканному вкусу.
Грамотно спланированное пространство позволило найти место для трех систем хранения, достаточно вместительных, чтобы спрятать все вещи хозяев. Балкон расширяет возможности гостиной зоны.
В дизайне квартиры-студии 33 кв. м. белый использован в качестве основного цвета, и дополнен контрастным темно-коричневым, что придает выразительность и подчеркивает объем. Белый цвет стен и потолков визуально увеличивает объем и придает легкость. Темные полы во всех зонах, кроме кухни и прихожей, делают помещение более выразительным.
Там, где высока проходимость, и необходима особенно тщательная уборка — а именно во входной зоне и в зоне приготовления пищи — пол выложен белой плиткой. Кухонная мебель с белыми фасадами выстроена Г-образно, что экономит место.
В компактном интерьере квартиры нашлось место для обеденной зоны — за круглым столом вполне удобно могут устроиться одновременно три человека. Зона гостиной включает в себя уютный диван и домашний кинотеатр.
Спальное место отделено от остального пространства: со стороны прихожей — системой хранения, со стороны гостиной — ширмой, за которой прячется двуспальная кровать.
Шкафов во входной зоне три, и все они очень вместительны.

Ванная комната в квартире-студии 33 кв. м. выдержана в тех же цветах, что и остальные помещения — белый и темно-коричневый, напоминающий мореное дерево. Он придает интерьеру теплоту и уют.
Здесь поместилась и стандартная чаша ванны, и широкий умывальник, и унитаз со скрытой системой слива. Для полотенец и косметики предусмотрен встроенный шкафчик.


Архитектор:Студия «Однушечка»
Фотограф:Евгений Кулибаба
Год строительства:2011 г.
Площадь:33 м2
design-homes.ru
Дизайн однокомнатной квартиры 33 кв. м.
Смотреть фотогалерею … фото
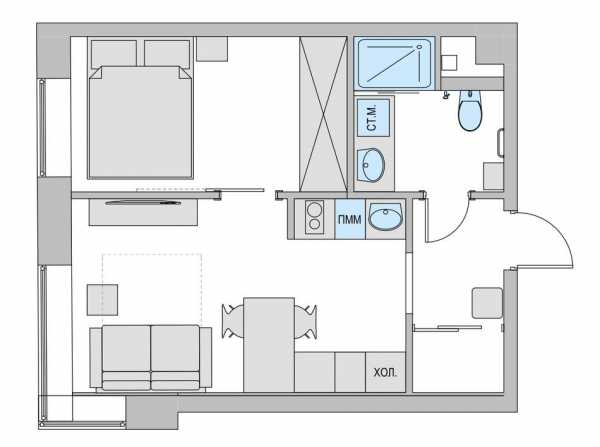
Совмещение спальни и гостиной в однокомнатной квартире — задача непростая, ведь окно — одно. Поэтому удобную широкую кровать отделили от дивана в гостиной зоне стеклом — оно обеспечит освещение в дневное время, а закрытая штора обеспечит чувство защищенности в ночное время.
Натуральные материалы — дерево, плитка, текстиль, а также природные цвета дерева, прекрасно сочетающиеся с белыми плоскостями стен, потолков и системы хранения, позволяют определить стиль дизайна однокомнатной квартиры 33 кв. м. как “скандинавский минимализм”.
Целью перепланировки было не только выделение спальни и гостиной в однокомнатной квартире, но и обязательное устройство зоны для работы с удобным столом и креслом. Столешница рабочего стола тянется до окна, объединяя визуально все имеющиеся зоны в один объем. Теперь такое рабочее место оборудовано в гостиной. Та стена, возле которой находится стол для работы, обшита досками и тонирована.
Кухня изолирована от остальных зон, практически все ее элементы имеют либо белый цвет, либо цвет дерева.
Контраст фактур — холодный глянец фасадов и фартука и теплая шероховатость деревянных деталей — создает ощущение одновременно чистоты и уюта.
Входная зона также имеет обшивку деревом. Здесь находится дверь в сантехническое помещение, а также шкаф, в который убрана стиральная машина. Эта идея была заложена еще на стадии проектирования и дизайна однокомнатной квартиры 33 кв. м., поскольку потребовалось подводить воду и прокладывать в стяжке специальную трубу для слива отработанной воды в стояк туалета.

Главное украшение ванной комнаты — пол. Китайская мозаика создает радостное “цветное” настроение. Отделать стены дизайнер предлагает керамогранитом светлого или темного бежевого оттенка — на выбор.


Страна:Россия
Площадь:33 м2
design-homes.ru
ДИЗАЙН ОДНОКОМНАТНОЙ КВАРТИРЫ 33 КВ.М: ФОТОАльдорэн Севастополь
Небольшая площадь квартиры — ещё не повод отказываться от спальни или полноценного обеденного стола. Многие люди годами мечтают о двуспальной кровати, но спят на раскладном диване. И причина кроется вовсе не в ограниченной площади, а в неправильном дизайне. Конечно же, разместить все необходимое на 33 квадратных метрах — задача очень непростая. Но если подойти к вопросу планировки и расстановки мебели с фантазией и оригинальным взглядом, то можно добиться удивительных результатов. Дизайнеры постоянно сталкиваются с малогабаритными квартирами, поэтому число интересных и стильных решений увеличивается каждый день. Преобразить привычный неудобный интерьер можно несколькими способами: от совсем радикальных (сноса стен) до самых простых (смены цветовой гаммы). Как же можно оформить однокомнатную квартиру?

Планировка и расширение пространства
Вопрос планировки встает самым первым. Ведь уместить в однокомнатной квартире гостиную и спальню — самая сложная задача, с которой придется столкнуться. Решить её можно разными способами: совмещением двух функций в одной комнате или полным отказом от спальни или (что также случается) от гостиной. Можно было бы разделить две зоны стеной, но дополнительно дробить и без того небольшое пространство — не лучшее решение. Популярностью пользуются два решения: установка в комнате дивана-трансформера (гостиная с функциями спальни) и установка кровати в дальней зоне/нише, а дивана на видном месте (гостиная и спальня в равных долях).

Визуально и физически расширить пространство можно лишь приступив к настоящей перепланировке. Чаще всего однокомнатную квартиру превращают в студию, убирая все стены кроме тех, что изолируют санузел. В некоторых случаях стены не убирают, а немного «сдвигают». Также дизайнеры прибегают к интересному приему — они переносят дверные проемы, чтобы двери не мешали верной расстановке мебели. Конечно же, такое решение нужно принимать только в случае крайней необходимости. К тому же для перепланировки потребуются соответствующие документы. Несущие стены при этом переносить или сносить нельзя.
Расширить полезную площадь можно, объединив комнату с лоджией или кладовой. Очень часто «незначительные» два квадратных метра способны полностью изменить восприятие всего дома.

Зонирование
Отказ от лишних стен и загромождающих пространство дверей приводит к другой проблеме — необходимости зонирования квартиры. Как отделить кухню от гостиной? Как максимально изолировать кровать? Универсального ответа на эти вопросы не существует, ведь каждый конкретный проект подразумевает использование определенных способов зонирования. И все же можно выделить несколько беспроигрышных вариантов:
- зонирование с помощью мебели. Самый простой в монтаже способ зонирования. Стеллажи для книг и шкафы могут заменить стены, но для маленькой комнаты такое решение сложно назвать идеальным. Рекомендуем использовать в качестве разделителей барные стойки и стеллажи средней высоты (около 130-150 см), они позволяют свету свободно распространяться и визуально не уменьшают размер помещения. Также хорошо разграничить зоны гостиной и спальни можно, состыковав изголовье кровати со спинкой дивана;
- зонирование с помощью цвета. Казалось бы, можно сделать гостиную в зеленых тонах, обеденную зону в желтых, а спальню — в голубых. Все они будут хорошо заметны, но весь интерьер в целом гармоничным не получится. Именно поэтому использование разных цветов в одном помещении требует знаний и опыта. Обычно выбирают один-два основных цвета и дополняют интерьер акцентными тонами. Правильное сочетание оттенков поможет выделить каждую зону, но сохранить единство композиции;

- зонирование уровнем. Идеальный вариант для малогабаритных квартир — использование подиума. В него можно спрятать кровать, а можно разместить спальню и на нем. В любом случае такой прием позволит сразу же выделить ту зону, которая находится на возвышенности;
- выделение текстурой. На самом деле не только цвет способен привлекать внимание. Белый кафель и белый ламинат выглядят по-разному. И этот прием дизайнеры активно используют, оформляя разные зоны;
- выделение светом. Маленькая комната обязательно должна хорошо освещаться. Общая люстра под потолком — это необходимый элемент дизайна такого интерьера. Однако у каждой отдельной зоны должен быть свой источник света. На рабочем столе разместите лампу, у дивана в гостиной — торшер, а над кроватью — бра.
Правильная комбинация нескольких способов зонирования пространства гарантирует успешный результат. Помните о том, что границы зон не должны «бросаться в глаза». Правильный дизайн объединяет разные зоны, создает общее пространство.

Цвет и стиль однокомнатной квартиры 33 кв. м
Стоит понимать, что не каждый стиль может быть реализован на ограниченном пространстве. Вычурный барокко, например, не найдет себе места. Да и классические интерьеры с трудом впишутся в 33 кв. метра. Так какому же стилю отдать предпочтение?
Дизайнеры рекомендуют остановиться на чем-нибудь менее строгом и декоративном. Минимализм, скандинавский стиль, фьюжн или лофт идеально подойдут для создания практичного и стильного интерьера.
Предпочтение лучше отдать светлым и неярким цветам: белому, бежевому,серому, серебристому, небесно-голубому, жемчужному и пр. Все они визуально увеличивают пространство, стирая границы и отдаляя стены. Но и выстраивать весь интерьер исключительно в этой палитре не стоит — он может показаться слишком холодным и «пустым». Добавьте несколько ярких акцентов, подбирать которые нужно под конкретный стиль.

Мебель для малогабаритных квартир
Ограниченное пространство вынуждает людей выдумывать самые невероятные способы его увеличить. Привычные диваны-трансформеры — это далеко не предел человеческой фантазии. Кровать можно, например, спрятать в шкаф или сделать подъемной, прикрепив к потолку.
Популярностью пользуются столы-трансформеры, позволяющие за несколько секунд превратить маленький журнальный столик в большой обеденный стол. Но стоит учитывать тот факт, что к подобному столу потребуются стулья. Впрочем, они могут быть складными. Хранить такие стулья можно как на балконе, так и в шкафу.

Приобретая шкафы для маленькой квартиры, отдавайте предпочтение глубоким и большим. Один крупный шкаф вместит в себя больше вещей, чем два мелких. Если в квартире есть ниша, то рекомендуем превратить её в шкаф-купе или даже гардеробную.
Уделите внимание пуфам. Эти незаметные, но очень полезные элементы интерьера выполняют сразу две функции: обеспечивают вас дополнительным посадочным местом и позволяют убрать мелкие вещи. В пуфе можно хранить пульты управления от всех приборов, зарядные устройства для телефонов и ноутбуков, плед и прочие вещи, которые регулярно должны быть под рукой.
Современное решение для малогабаритной квартиры — установка подвесных полок, которые помогут увеличить полезную площадь. На них можно хранить не только всякие мелочи, но даже сезонную одежду и обувь. Для этого нужно лишь подобрать несколько стильных цветных коробочек.

Дизайн однокомнатной квартиры 33 кв.м: фото





















aldoren.ru
Интересные идеи дизайна однокомнатной квартиры — 33 примера — Arhimed Today
Жителям больших городов — большие квартиры. Как бы это утверждение красиво не выглядело, зачастую у среднестатистического горожанина квартира если и имеется, то небольших размеров. Еще более частой проблемой становится банальная нехватка свободного пространства из-за неправильно расставленной мебели . Сегодня мы собрали идеи дизайна однокомнатной квартиры, посмотрев на которые можно найти знакомую вам планировку и по мере желания скопировать чьи-то задумки.

Запись «Интересные идеи дизайна однокомнатной квартиры» включает в себя не только варианты для квартир, но здесь так же есть на что посмотреть владельцам маленьких домов. Любой пример можно использовать как в первом случае, так и во втором. Большая часть проектов родом из Америки и делались они, в основном, руками простых людей, а не профессиональных студий.
Идеи дизайна однокомнатной квартиры — интерьер домика Malissa

Оригинальное название проекта Malissa. Этот небольшой, но полноценный домик занял свою площадь в штате Вашингтон, США. Его внутренняя площадь для дома чрезвычайно мала и составляет всего около 13 квадратных метров. Суммарно обустройство интерьера обошлось в 3750$(не включая iMac) и полтора года работы. В целом домик получился уютным и, судя по фотографиям, в меру комфортным.





Идеи дизайна однокомнатной квартиры — Mary

Следующая на очереди идет Vary, площадь которой составляет чуть меньше 28 квадратных метров. Не смотря на столь мелкие габариты, в квартире спокойно уместился диван, кресло, мольберт, письменный стол и даже осталось свободное место в центре комнаты. Кстати, если вы все ищете студию, способную выполнить аналогичный проект, то вот теперь знайте где заказать дизайн интерьера.




Идеи дизайна однокомнатной квартиры — Alexander

Название данной идеи дизайна однокомнатной квартиры — Alexander. Её «колоссальная площадь» почти в 21 квадратный метр заняла пространство в одном из самых дорогих городов мира — Нью-Йорке. В ней имеется практически все, что необходимо для комфортного проживания одному. К этому можно причислить телевизор, двуспальную кровать, шкаф, кухню, письменно-обеденный столик. В последнем снимке прилагается авторский проект жил.площади, нарисованный от руки.





Идеи дизайна однокомнатной квартиры — John

Еще один пример того, как можно обустроить свою небольшую квартиру в мегаполисе. Данный «пентхаус» расположен в городе Нью-Йорк и обладает площадью всего в 24 квадратных метра. Особенность квартиры такова, что она расположена буквой «L» и возможность сделать прямую лофт-студию — отсуствует. В целом, проект John обставлен всеми необходимыми для житья элементами и функциями. Интересной особенностью интерьера можно назвать то, как авторы смогли совместить некоторые старые вещи с современным дизайном. В данном случае речь идет о громоздком белом шкафе, который вы сможете увидеть чуть ниже.





Идеи дизайна однокомнатной квартиры — Caitlin

На очереди идеи дизайна однокомнатной квартиры из Окленда, штат Калифорния. Оригинальное название проекта — Caitlin. Площадь этой нестандартной квартиры составляет всего 30,5 квадратных метров. Явным преимуществом по сравнению с предшественниками можно назвать то, что у нее есть некое подобие лоджии. Зато из окон открывается хороший вид на решетку, а уже за ней в нескольких сотнях метров — озеро.





Идеи дизайна однокомнатной квартиры — Stephanie

Еще один яркий пример того, как можно красиво обустроить даже небольшую квартиру, сделав ее уютной и по-своему роскошной. Суммарная площадь проекта Stephanie составляет 30,5 квадратных метров. За счет большого окна в маленькой квартире большое количество естественного освещения.





Идеи дизайна однокомнатной квартиры — Joy

Идеи дизайна однокомнатной квартиры зависят от многих вещей и в частности от планировки. На очереди проект квартиры, которая расположена в Бруклине, Нью-Йорк. Планировка ее такова, что множественные углы было трудно использовать без тщательного рассмотрения. Изучив все 34 квадратных метра, авторы обставили их по мере финансовых возможностей и сил. В итоге получилось весьма сносное и уютное жилище на двоих.





Идеи дизайна однокомнатной квартиры — Emily

Откровенно говоря, обладателям данной недвижимости можно только посочувствовать. У некоторых студентов в общежитии площадь больше, чем у проекта Emily. Составляет она чуть менее 21 квадратного метра и здесь расположились все необходимые для жизни удобства. К таковым можно причислить крошечный туалет, душевую кабину, диван, двуспальную кровать и стол и даже камин. Судя по снимкам: шаг вправо, шаг влево — удар мизинцем об мебель.





Идеи дизайна однокомнатной квартиры — Kerry
По сравнению с предыдущим проектом Kerry просто великан. Площадь данной квартиры со всеми необходимыми удобствами составляет порядком 26.5 квадратных метров и фантазии дизайнера было где разгуляться. Тут мы видим и двуспальную кровать, и диван, и обставленную мини-кухню. Сама квартира расположилась в городе Нью-Йорк.






Идеи дизайна однокомнатной квартиры — Hannah

Наверное любой студент, бывавший в общежитиях, сейчас увидит знакомую планировку. Проект Hannah обладает чуть большей площадью, по сравнению с общагой, и равна она 32.5 квадратным метрам. Во время его разработки автор учитывала только свои любимые оттенки, чтобы сделать его не временным, а постоянным комфортным жилищем. Расположилась квартирка в Сиэтле, штат Вашингтон. Мебель подбиралась и разрабатывалась с долей прагматизма — поменьше всяких «наворотов», а побольше функционала.





Идеи дизайна однокомнатной квартиры — Shari

Следующим проектом выступает пересмотренный маленький дом на колесах, площадь которого составляет всего 20 квадратных метров. Планировка и внутренние перегородки остались практически в не измененном виде. Ремонт этого вагончика коснулся лишь полной смены полов, мебели и его функциональных особенностей. Вместо походного домика он стал полноценным жилищем для одного человека. На последнем снимке проекта Shari вы сможете почувствовать разницу, так как автор привел в сравнение первоначальную версию и свою.




Идеи дизайна однокомнатной квартиры — Leslie

У нас на очереди еще один необычный проект. Как уже упоминалось ранее, идеи дизайна однокомнатной квартиры могут быть самыми различными и зачастую очень многое зависит от базовой планировки. В данном случае, у авторов проекта Leslie было где разгуляться практически в квадратной квартире. Ее площадь составляет порядком 28 квадратных метров и расположена она в Чикаго, штат Иллинойс. За счет трех больших окон в квартире большое количество естественного освещения. Обилие цветовых сочетаний в дизайне квартиры заставляет несколько удивляться. Тут можно встретить серый, оранжевый, белый, бежевый, черный и даже красный цвет.





Идеи дизайна однокомнатной квартиры — Xsusha

Следующий проект, который ласково именуется неправильным написанием имени «Ксюша», был сооружен все в том же тесном городе Нью-Йорк. Его площадь приравнивается к 28 квадратным метрам. Повсюду наблюдается единый стиль, напоминающий строки из отечественной песни: «Я его слепила из того что было». А ведь и в правду, приглядываясь к снимкам вы сможете увидеть подголовники из обычных межкомнатных дверей, много ретро-чемоданов и даже сундук.





Идеи дизайна однокомнатной квартиры — Erica

Проект Erica является одним из тех примеров, когда все старое может спокойно уживаться с новым. Ее площадь составляет примерно 24 квадратных метра. Вокруг видна мебель, которой возможно уже почти за шестьдесят. Как рассказывал сам автор — это просто роскошный дом по сравнению с тем, где он раньше жил. Та квартира была на треть меньше этой, то бишь около 15 квадратных метров и вряд ли найдутся идеи дизайна квартиры для столь крошечной комнатушки.





Идеи дизайна однокомнатной квартиры — Lauren

Еще один проект обустройства маленькой квартиры из Нью-Йорка, Lauren. Ее площадь составляет всего 31.5 квадратных метра и яркой особенностью можно назвать планировку. Практически прямой узкий коридор составляет всю ее свободную и занятую площадь. Как сообщает сам автор, его любимое место находится возле окна и поэтому тот уголок обустраивался с особой тщательностью. В Lauren нет большого количества шкафов и антресолей, так как нет свободной территории, которую можно было бы задействовать.





Идеи дизайна однокомнатной квартиры — Alexandra

Следующим на очереди идет проект с добрым женским именем — Александра. Эта небольшая квартира на 23.5 квадратных метра расположилась в Нью-Йорке. Автор очень любит зиму, сидеть часами наблюдать за тем, как падает снег. Поэтому по мере возможностей она старалась сделать ее светлой и теплой.





Идеи дизайна однокомнатной квартиры — Kathryn

На очереди идеи дизайна однокомнатной квартиры из Лос-Анджелесе, штат Калифорния. У владельцев данной недвижимости не было места в квартире на 33 квадратных метра. Вечно о что-нибудь спотыкались. Пересмотрев базовую планировку и решив задействовать уже имеющиеся стены, при помощи нехитрых действий удалось все цветы с пола разместить на подвесных горшках, а кастрюли и сковородки стали еще и частью декора.





Идеи дизайна однокомнатной квартиры — Christopher

Владельцу этой же квартиры в некоем роде повезло. У нее правильная прямоугольная планировка, что позволяет свободно все перестроить в любой нужный момент. В данном же случае каждая мини-комната имеет свое место, раскинувшееся на 32,5 квадратных метров в Западном Голливуде, штат Калифорния.





Идеи дизайна однокомнатной квартиры — Tommy

Суммарная площадь следующего проекта «Томми», расположенного в Сан-Франциско, приравнивается к 34.7 квадратным метрам. Это не так и мало, если присмотреться к фотографиям. Авторам удалось разместить множество разнородной современной и старой мебели в одной квартире, сделав ее приятной для отдыха и проживания.





Идеи дизайна однокомнатной квартиры — Nicole

Еще один интересный пример из города Нью-Йорк. Как многие знают, там остро стоит вопрос о нехватке жилой площади и исходя из этого, люди стараются обустраивать свой интерьер при любой ее наличии. Сейчас речь пойдет о проекте «Nicole», площадь которой составляет 34 квадратных метра. В здании имеется два больших окна, наполняя жилище большим количеством солнечного света. Очень интересно выглядит кухня и переход из одной половины комнаты в другую. Три встроенных шкафа практически не сменили своих позиций и позволяют прятать все вещи по полочкам.





Идеи дизайна однокомнатной квартиры — Linsey

Еще одним проектом, представляющим город Нью-Йорк является квартира на 27 квадратных метров Linsey. Как видно из планировки, у владельцев еще осталось незадействованными почти целый квадратный метр, но они и так разместили все по своим местам.





Идеи дизайна однокомнатной квартиры — Leah

Следующая идея из Сан-Франциско, штат Калифорния. Ее площадь составляет почти 37 квадратных метров, что по-русским меркам в некоторых случаях тянет на полноценную двухкомнатную квартиру. Владельцы этой недвижимости решили стереть границы в уже существовавшей студии и четко разделили их легкими тонкими перегородками.





Идеи дизайна однокомнатной квартиры — Garrett

Гаррет — это яркий пример того, как можно красиво обустроить квартиру, сохранив некоторые элементы старого интерьера. Квартира выглядит очень чисто и опрятно. По всюду наблюдается порядок и отсутствует захламленность отдельно взятого участка. Здесь живет молодой парень. Ее площадь примерно равна 31,5 квадратным метрам, в которых уместились все жизненно важные удобства.





Идеи дизайна однокомнатной квартиры — Daniel

Еще один проект из города Нью-Йорк. Как и в предыдущем проекте, здесь живет парень.Но его отличие- проект «Даниил» кардинально отличается количеством занятого места и яркими оттенками. Жилец любит коммиксы, а также может часами просматривать свои любимые фильмы лежа на раскладном диване или кровати. Суммарная площадь однокомнатной квартиры составляет порядком 30 квадратных метров. В этом проекте отлично бы смотрелись подвесные горшки: Еще одни интересные подвесные горшки от Tokyo Craft Studios





Идеи дизайна однокомнатной квартиры — Bethany Kay

Еще один проект из Нью-Йорка. Сразу видно, что владелица этой небольшой квартиры мечтает о просторном доме. Повсюду можно увидеть достаточно большие картины, шкаф и кровать, которым в том самом доме обязательно нашлось бы место. Сложно поверить, что все это уместилось в 28 квадратных метрах если считать, что ванная комната у данного проекта не очень маленькая.





Идеи дизайна однокомнатной квартиры — Ashley & Ryan

Проект «Эшли и Райан» является одним из самых низко бюджетных в данной подборке. Привлекателен он тем, что не смотря на достаточно плохую планировку узкой квартиры, здесь имеется достаточно свободного места. Располагается эта однокомнатная квартира в Сан-Франциско, штат Калифорния. Ее площадь не превышает 29,5 квадратных метров. Мебель и обстановка в целом сохранилась от ранее живущих здесь дедушки и бабушки.





Идеи дизайна однокомнатной квартиры — Jane

Проект «Джейн» расположен в Чигако, штат Иллинойс. Изначально эта квартира была практически литой студией без разделения жилой площади. Авторы решили пересмотреть площадь квартиры и сделали некоторого вида перепланировку, ведь было где разгуляться на прямоугольной площади в 37 квадратных метров. В целом, после ремонта получилась вполне сносная для жилья квартира, план которой можно посмотреть ниже на авторском рисунке.





Идеи дизайна однокомнатной квартиры — Amy

Следующий проект из Западного Голливуда, штат Калифорния, является самым маленьким в подборке. Площадь проекта «Эми» составляет всего 16 квадратных метров и расположилась эта тесная квартира в легендарном строении, которое построил Чарли Чаплин в 1924 году для актеров, работающих в студии по соседству. Для жителей Голливуда такие места имеют реальное значение и некоторые даже готовы терпеть все неудобства, лишь бы жить в исторически значимом месте.





Идеи дизайна однокомнатной квартиры — Erin

На очереди идеи дизайна однокомнатной квартиры из Саванны, штат Джорджия. Проект «Erin» обладает площадью в 34 квадратных метра. Основным приоритетом при планировании ремонта было то, что владелец этой недвижимости любит большое количество света в доме. Наверное этому есть более точное объяснение, чем просто разглядывание портретов на стенах, но автор умолчал. На четвертом снимке запечатлена интересная люстра, похожая на проекты от фирмы Flos: Красивые осветительные приборы от компании Flos





Идеи дизайна однокомнатной квартиры — Martha

На очереди еще один проект из Лос-Анджелеса, штат Калифорния. Несмотря на всю сложность планировки помещения, автору очень нравится его обстановка. В качестве приоритетной цели во время обустройства жилища, владелец недвижимости старался сделать много места для гостей, часто навещающих его. Площадь проекта «Марта» составляет порядком 30 квадратных метров.





Идеи дизайна однокомнатной квартиры — Laura

Проект «Laura» — один из самых современных и привлекательных в данной подборке. Расположенная в Бруклине небольшая квартира на 31 квадратный метр обладает хорошей планировкой, что дало пространство для реализации различных идей по обустройству квартиры. В проекте спокойно уместилась мини-библиотека, гардеробная, пространство для тренировок, зрительный зал и мини-офис.





Идеи дизайна однокомнатной квартиры — Kristopher

Проект «Kristopher» является еще одним примером того, как крошечную конуру со сложной планировкой можно использовать по максимуму. Площадь квартиры составляет всего 17 квадратных метров и здесь мы отчетливо видим, как все свободное пространство от пола до потолка используется под определенные цели. Обилие комнат и дверей дополнительно урезает возможности, но авторы нашли способы их правильно использовать.





Идеи дизайна однокомнатной квартиры — Stacy

Вот и подходит к концу эта интересная подборка . На очереди проект «Stacy», раскинувшийся на 33,5 квадратных метра. Автор живет с несколькими питомцами и свободного места сохранилось достаточно, чтобы периодически менять обстановку, покупая новую мебель. Владелица квартиры не любит жесткие рамки и поэтому в меру возможностей старалась убирать классические перегородки, заменяя их стеклянными. Кстати, в данном проекте вы можете видеть украшенную лампочку. Ранее на нашем сайте публиковалась запись, которая поможет вам сделать что-то подобное своими руками: Элементарное украшение люстры-лампы.





arhimedtoday.com
Дизайн маленькой двухкомнатной квартиры 33 кв.м.

Оказывается, даже на такой маленькой площади в 33 кв.м. можно сделать современное и функциональное пространство, в данном случае включающее в себя отдельную спальню и гардеробную.
Планировка
Дизайнерам удалось увеличить ванную комнату за счет не жилого коридора и сделать спальню отдельной. При этом гостиная получилась совсем небольшой, но при этом уютной.


Цветовая схема
Пространство включающее 2-3 цвета является идеальным решением для таких небольших помещений, как эта квартира. Светлые цвета позволяют визуально расширить пространство. Для большей выразительности и придания индивидуальности, дизайнер добавила в интерьер квартиры 33 кв.м. цветные элементы.
Бирюзовый прикроватный столик в спальне и такие же подушки на постели сыграли очень классные акценты, а подушки в гостиной и стул современной формы, находящийся в ванной прекрасно оживили интерьер.
Свет
Высота потолков в этой квартире позволила спрятать под ними часть коммуникаций.Встроенные источники освещения, находящиеся повсюду делают квартиру светлой и дружелюбной.
Гостиную украшает красивая большая люстра, а зона, где находится кухня оформлена двумя подвесными светильниками. Стильная люстра из прозрачного материала, которая висит в спальне, подчеркивает общую легкость интерьера, а бра над кроватью позволяют сделать освещение интимным.
Смотрим!

interieristka.ru
Пример дизайна для однокомнатной хрущевки или 33 квадратных метра. Мастеровой


Квартира-студия 33 кв. м. идеальна для проживания семьи из двух человек. Несмотря на довольно скромные размеры, она очень функциональна, здесь есть все необходимое для комфортного проживания.

Спальня выделена из общего пространства, что позволяет спокойно отдыхать ночью, и в то же время она не уменьшает общий объем помещения. Вдобавок квартира выглядит очень стильно и современно, элегантный компактный интерьер удовлетворит самому изысканному вкусу.

Грамотно спланированное пространство позволило найти место для трех систем хранения, достаточно вместительных, чтобы спрятать все вещи хозяев. Балкон расширяет возможности гостиной зоны.

В дизайне квартиры-студии 33 кв. м. белый использован в качестве основного цвета, и дополнен контрастным темно-коричневым, что придает выразительность и подчеркивает объем. Белый цвет стен и потолков визуально увеличивает объем и придает легкость. Темные полы во всех зонах, кроме кухни и прихожей, делают помещение более выразительным.


Там, где высока проходимость, и необходима особенно тщательная уборка — а именно во входной зоне и в зоне приготовления пищи — пол выложен белой плиткой. Кухонная мебель с белыми фасадами выстроена Г-образно, что экономит место.


Спальное место отделено от остального пространства: со стороны прихожей — системой хранения, со стороны гостиной — ширмой, за которой прячется двуспальная кровать.


Шкафов во входной зоне три, и все они очень вместительны.



Ванная комната в квартире-студии 33 кв. м. выдержана в тех же цветах, что и остальные помещения — белый и темно-коричневый, напоминающий мореное дерево. Он придает интерьеру теплоту и уют.




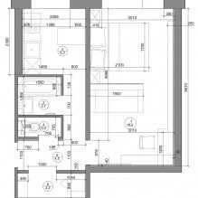
Для общего понимания план.

Фотограф: Евгений Кулибаба
Год строительства:2011 г.
Страна:Россия, Москва
Площадь:33 м2
Related posts:
aparo.ru
Типовая однушка Smile, 33 кв.м.
Продолжаю радовать вас интерьерами из конкурса PinWin, я бы сказал это кладезь хорошего дизайна!
Интерьер этой однокомнатной квартиры выполнен в стиле минимализм. Как пишет автор проекта это жилище для молодого человека далекого от стереотипов. Преобладает темная цветовая гамма, что нисколько не делает интерьер мрачным.

Вместо бра дизайнер использовал торшер, интересное нетиповое решение. У кровати есть креслице для чтения и полки для книг.

Дизайнер объединил лоджию с общим пространство что на мой взгляд весьма оправдано в условиях дефицита квадратных метров.

Спальное место выполнено в виде бокса-трансформера, кровать можно превратить в диван и даже разложить кофейный столик. Часть шкафа не имеет двери и закрывается шторой для упрощения доступа.

Чтобы бокс не был похож на коробку дизайнер предусмотрел проем с перегородке отделанной деревом.

Внутренняя панель входной двери выполнена в виде зеркала, что на мой взгляд является хорошим решением и расширяет пространство, к тому же удобно перед выходом из квартиры взглянуть на себя.

Кухня проста и минималистична, фартук отделан мозаикой из камня, а зона с варочной панелью плитой из камня. Вентиляционная решетка выполнена в едином стиле с кухней.

Санузел отделен раздвижной перегородкой до потолка.

Часть кровати отделена низкой системой хранения, что весьма удобно.

Ванна выполнена в виде кубической чаши из камня, решение спорное в плане удобства. Частично открывается вид на кухню, роль обеденного стола выполняет барная стойка у окна.

В целом квартира очень понравилась, несмотря на открытость спальной зоны и небольшой метраж создается ощущение свободы.
Автор проекта Артем Шелипов.
www.odnushechki.ru