Винтовые лестницы на второй этаж в частном доме: фото, цены на конструкции |
Винтовые лестницы на второй этаж в частном доме: фото, цены на конструкции | | Ремонт своими руками Главная » Мой дом » Винтовые лестницы на второй этаж в частном доме: фото, цены на конструкции
Опубликовал: admin в Мой дом 23.02.2018 86 Просмотров
Винтовая лестница по праву считается королевой среди лестничных систем. Всегда роскошная, с непревзойденным дизайном — такая конструкция служит центральным декоративным элементом, вокруг которого формируется весь интерьер. Винтовые системы лестниц предельно функциональны, но при этом не занимают много полезного пространства. Обзор «Винтовые лестницы на второй этаж в частном доме: фото, цены на конструкции» поможет изучить существующие варианты лестниц и отдать предпочтение функциональной, безопасной и компактной конструкции.

Стильная винтовая лестница из дерева украсит любой интерьер
Винтовая лестница: виды конструкций
Винтовые лестницы являются наиболее привлекательными и необычными конструкциями. Они могут различаться по материалам, применяемым для их изготовления и по стилю конструкции. Классифицируются винтовые лестницы в зависимости от способа опоры проступей (ступеней):
- опора ступеней на стены и столб в такой конструкции ступени винтовой лестницы клинообразной формы опираются своей широкой частью на периметральные стены, в то время как узкая часть ступеней имеет опору в виде среднего столба. Опорный столб выполняется из камня или может быть набран из утолщений ступеней;
- консольное крепление ступеней вокруг опорного столба
ступени такой винтовой системы консольно крепятся к центральной стойке в виде столба. Крепление ступеней получается довольно жестким, поэтому такая лестница может устанавливаться необязательно рядом со стеной;

Деревянная винтовая лестница с опорой на изогнутую тетиву
- опора ступеней на изогнутую тетиву и ограждение такая конструкция лестницы не предусматривает центральной опоры. Ступени монтируются в изогнутые спирально тетивы, служащие в то же время и заграждениями. Изготовление такой винтовой конструкции сопряжено с определенными сложностями, однако, она имеет очень привлекательный и оригинальный вид;
- ступени нанизаны узкой частью на обсадную опорную трубу наиболее распространенный способ крепления ступеней: металлические проступи консольно опираются на внутреннюю опорную стойку в виде трубы. В этой конструкции важно, чтобы труба была не меньше 50 мм в диаметре, так как она выполняет роль несущего элемента в лестничной системе.

Варианты конструкции винтовой лестницы
Для изготовления винтовых лестниц применяются различные материалы, среди которых:
- металл нержавеющая сталь, легированная сталь, латунь, шлифованный алюминий, чугун;
- дерево дуб, клен, бук, лиственница, сосна и другие;
- камень, кирпич, керамика, стекло, мрамор.
Для создания винтовых систем применяют разнообразные сочетания материалов, благодаря чему получаются оригинальные и необычные конструкции. Главным их достоинством является высокая прочность и устойчивость к весомым нагрузкам.

Современные винтовые лестницы могут быть самых разнообразных форм и цветов
Расчет винтовых лестниц
Расчет размеров винтовой лестницы во многом зависит от назначения конструкции: будет ли она основная или вспомогательная. Если лестница выполняет роль основной, рекомендуется размер ее ступеней принимать не меньше, чем 90 см в длину, а диаметр проема, в который она будет устанавливаться — 200 см. Получается, что диаметр проема должен быть приблизительно на 20 см больше двух величин длины ступеней. Такая величина проема объясняется необходимостью обустройства винтовой лестничной конструкции ограждением и перилами. Тогда между перилами и поверхностью проема остается зазор в 10 см, что будет способствовать удобному опиранию на поручень. В случае со вспомогательной винтовой лестницей достаточно проема с диаметром 140 см и длиной ступеней 60 см. Обычно такие лестницы используют для подъема на чердак или спуска в подвальное помещение.

Компактная металлическая лестница на чердак
Конструкция винтовых лестниц такова, что при передвижении по ним используется не вся длина ступеней, а только широкая ее часть. Если, к примеру, проектируемая лестница имеет ширину ступени 90 см, то часть от этой ступени будет крепиться к опорному столбу, с другой стороны будет крепиться ограждение. Таким образом, для ходьбы останется около 80 см. Но учитывая, что ступени винтовой конструкции имеют забежное расположение, та их часть, которая крепится у столба, будет нависать над частью последующей ступени. Следовательно, ширина ступени, пригодная для передвижения, сократится еще на 25%. В результате получится, что из всей ступени шириной 90 см использоваться для перемещения будет около 50 см.

Изящная металлическая винтовая лестница
Для достижения более комфортного перемещения, диаметр проема и размеры винтовой лестницы увеличивают. Однако, не следует величину проема принимать более 300 см, в этом случае пространство под занимаемую лестницу позволит установить маршевую конструкцию.
Винтовая лестница своими руками. Чертежи и схемы конструкций
Многочисленные фото винтовых лестниц на второй этаж своими руками свидетельствуют о том, что самостоятельное изготовление таких конструкций вполне возможно. Приступая к изготовлению лестниц, необходимо определить место установки, рассчитать все параметры, разобраться в чертежах винтовых лестниц.

Винтовая лестница с опорой на стены и столб
Для примера рассмотрим винтовую конструкцию лестницы с деревянными клинообразными ступенями и несущей опорой в виде металлического столба. Такую лестницу можно устанавливать как рядом со стеной, так и посредине комнаты.
Схема конструкции лестницы
Основанием конструкции винтовой лестницы служит несущая опора в виде стержня, к которому прикреплены ступени. Как правило, для несущего столба используют массивную металлическую трубу. Опорой ступеней служат прикрепленные к стойке втулки. Их можно изготовить самостоятельно, разрезав стальную трубу на цилиндры определенных размеров. С двух сторон к цилиндрам-втулкам приваривают накладки, имеющие отверстия для насаживания их на опорную стойку.

Обратную сторону ступеней винтовой лестницы можно оборудовать удобными полочками
Для придания втулкам эстетического вида их оклеивают декоративной пленкой соответствующей фактуры. Это может быть имитация дерева или мрамора, в зависимости от сочетания с материалом для ступеней. Иногда в качестве втулок используют деревянные элементы цилиндрической формы. Здесь главное, чтобы торцы всех втулок были параллельны друг другу.
Как сделана винтовая лестница: порядок установки
Монтаж лестницы начинают с установки несущей опоры. Ее длина должна быть больше суммы высоты помещения и толщины верхнего перекрытия на 7 см. На верхнем конце опоры нарезается резьба длиной около 20 см, нижний край опоры бетонируется.

Металл и дерево популярное сочетание для обустройства винтовых лестниц
Предварительно должны быть заготовлены все необходимые детали лестницы: ступени, втулки распора, манжеты, муфты. Все детали последовательно монтируют на несущей опоре. Как только самая последняя ступень будет установлена, всю систему фиксируют с помощью диска и прикручивания на резьбу крепежной гайки.
Полезный совет! Чтобы со временем лестница при ходьбе не скрипела, необходимо подтягивать верхнюю гайку крепежа по мере усадки проступей.
Далее крепятся все элементы ограждения, проверяется фиксация ступеней и стержней заграждений и окончательно фиксируется верхняя крепежная гайка.

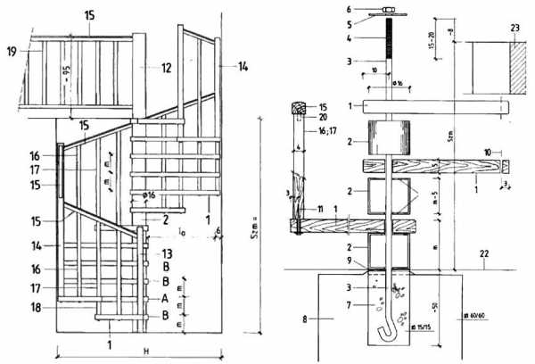
Схема монтажа лестницы
Пояснения к Схеме монтажа лестницы:
| 1 — ступени лестницы; | 12,13 — верхняя и нижняя стойки ограждения; |
| 2 — втулка для распора ступеней; | 14 — угловая стойка ограждения; |
| 3 — несущая опора; | 15 — перила; |
| 4 — резьба для закрепления стойки; | 16 — короткая стойка ограждения; |
| 5 — диск под гайку; | 17 — длинная стойка ограждения; |
| 6 — гайка крепежа; | 18 — добавочная стойка ограждения; |
| 7 — крепление опоры путем бетонирования; | 19 — балюстрада; |
| 8 — фундамент дома; | 20 — соединительный палец; |
| 9 — выступ; | 21 — накладки втулки; |
| 10 — отверстие под ограждение; | 22 — поверхность пола; |
| 11 — крепление ограждения; | 23 — перекрытие. |
Установка винтовой лестницы своими руками из металла: чертежи конструкции
Винтовые лестницы из металла могут быть наружного и внутреннего использования. Если металлическая лестница устанавливается снаружи, она должна гармонировать с оконными решетками и входной дверью. В этом случае довольно уместными будут конструкции винтовых кованых лестниц. Если лестница устанавливается внутри помещения, желательно, чтобы ее дизайн поддерживал стиль интерьера. Винтовые лестницы из металла могут быть сборными, литыми, сварными.
При самостоятельном изготовлении винтовых металлических лестниц рекомендуется ознакомиться и воспользоваться готовыми схемами и чертежами конструкций, которые адаптируют под индивидуальные размеры.

Ступени винтовой лестницы нанизаны узкой частью на обсадную опорную трубу
Расчет металлической конструкции
Расчет всех параметров лестничной системы осуществляется с учетом следующих моментов:
- чтобы передвижение по лестнице было безопасным, расстояние между соседними витками винтовой конструкции должно быть не менее 2 м;
- если конструкция является основной и устанавливается в помещении, диаметр проема должен соответствовать размеру 200 см, а длина ступени 80 см;
- несущая металлическая опора должна быть выбрана в виде трубы с диаметром не меньше 5 см;

Современная винтовая лестница из металла и стекла
- ширина проступи (ступени) по средней линии составляет не меньше 20 см;
- если винтовая лестница окружена периметральными стенами, расстояние от поручня до поверхности стены должно быть около 10 см, чтобы при передвижении по лестнице было удобно держаться за поручень;
- не стоит увеличивать угол подъема лестницы выше 45 градусов;
- винтовая металлическая лестница должна иметь качественное и устойчивое ограждение;
- для безопасного передвижения по ступеням наружной лестницы рекомендуется использовать антискользящие покрытия.

Для безопасного передвижения винтовую лестницу лучше оборудовать надежными перилами и антискользящим покрытием ступеней
Решив изготовить металлическую лестницу самостоятельно, необходимо знать, что такая конструкция потребует знаний и опыта работы со сварочным аппаратом. Самостоятельному изготовлению подлежат металлические конструкции винтовых лестниц на второй этаж эконом-класса. Устройство таких лестниц предусматривает крепление ступеней к опорной металлической стойке. Все элементы лестницы готовятся отдельно в комфортных условиях, а в помещении производится сама сборка лестницы.
mikodom.ru
Винтовая лестница на второй этаж в частном доме: фото, видео
Различные лестничные системы превращают простой загородный дом в роскошный особняк. Винтовая лестница на второй этаж не только функциональна, но и позволяет экономить полезное пространство помещения. Купить готовую конструкцию могут далеко не все. Гораздо выгоднее собрать винтовую лестницу на второй этаж в частном доме своими руками, а фото и чертежи представлены на странице нашего сайта.
Винтовые лестницы столетия использовались в особняках, дворцах и домах богатых людей
Как построить винтовую лестницу на второй этаж своими руками, чертежи
Винтовые лестницы столетия использовались в особняках, дворцах и домах богатых людей. Они очень удобны, выглядят красиво и в значительной степени облагораживают интерьер. Разработанные по индивидуальному проекту конструкции выглядят оригинально, а в их изготовлении можно использовать практически любой материал. В нашей стране наибольшее распространение получили винтовые лестницы из металла с элементами ковки. Причина в том, что преимущества металлического изделия очевидны, и к основным стоит отнести следующее:
- Комплектующие стоят недорого и собрать изделие заблаговременно не составит труда.
- Сборка винтовой лестницы из металла своими руками довольно проста и от мастера не требуется наличие специальных навыков и инструмента.
- Металлические изделия долговечны, надежны, устойчивы к повреждениям.
- Простота работы с материалом позволяет реализовать практически любую идею, создать оригинальные конфигурации.
- Металл прекрасно сочетается с другими материалами и от этого лестница будет выглядеть только богаче.
Самыми популярными в нашей стране стали винтовые лестницы маршевой и винтовой конструкции. Простые маршевые лестницы имеют свои преимущества. Они просторны, ими удобно передвигаться и переносить по ним грузы. Лестничный марш из металла легко спроектировать, а в дальнейшем ремонтировать при необходимости. В то же время, винтовые лестницы более оригинальны, необычны, поэтому многие владельцы загородных особняков желают установить между этажами именно винтовой вариант. Расположить винтовую лестницу можно на ограниченном пространстве.
В нашей стране наибольшее распространение получили винтовые лестницы из металла с элементами ковки
Как построить винтовую лестницу из металла на второй этаж?
Приступая к разработке проекта и поиску чертежей, первым делом важно определиться, каким способом будет изготавливаться металлоконструкция. Ковка смотрится очень красиво, но реализовать проект сможет далеко не каждый. Гораздо проще использовать сварочную технику. Литые лестницы из металла предполагают наличие дорогого оборудования, и выполнить работу своими руками будет очень сложно.
Гораздо дешевле при изготовлении конструкции использовать обычный металл. Хотя чугунные или медные лестницы выглядят более благородно, цена готового варианта высока. Сталь стоит недорого, проста в использовании, относительно легко поддается формированию и прочна. Алюминий более мягкий и дорогостоящий материал, поэтому винтовая лестница из алюминия имеет ограничения по силе нагрузок.
Разрабатывая чертеж, нужно снять следующие размеры:
- расстояние от пола до потолка;
- расстояние до проема;
- диаметр проема;
- ширину ступеней;
- высоту шага.
Диаметр проема зависит от того, каким образом будет использоваться лестница. Если по ней будут только подниматься люди, то достаточно 100-105 см, а если по лестнице будут переносить габаритные предметы, мебель – не менее 300-310 см. 
Как построить винтовую лестницу на второй этаж: этапы проведения работ
После разработки проекта, покупается необходимое количество материала. Рекомендуется отдать предпочтение металлу толщиной около 5 мм. Далее по чертежу нарезаются ступени нужного размера клинообразной формы. В качестве опоры используют металлическую трубу. Монтаж винтовой лестницы включает проведение следующих видов работ:
- Монтаж опоры. Верхняя и нижняя часть трубы крепится к полу и потолку с помощью дюбелей 150 мм. Нижний край можно забетонировать на глубину около 40-50 см.
- Установка ступеней осуществляется с помощью брусков-фиксаторов из дерева. Фиксаторы нарезаются нужного размера и используются в качестве опоры для удаленного края, когда узкая часть ступени приваривается к опорному столбу.
- Крепление поручней. Устанавливать поручни или нет зависит от желания заказчика. Это необязательный элемент, но все же ради безопасности многие владельцы домов производят их монтаж. Поручни могут быть деревянными, металлическими и кованными. Однако лестницы без перил смотрятся более изящно.
- Проведение декоративных работ – важный и один из самых трудоемких этапов. Особенно сложно приходится тем, кто решил украсить металлическую лестницу кованными элементами.
После сбора конструкции стоит удалить все окалины, заусенцы и отшлифовать стыки и наплывы металла.
Чертеж винтовой лестницы
Как построить винтовую лестницу из металла: основные правила
Каждый владелец загородного дома желает, чтобы лестница была не только красивой, но и максимально удобной, практичной. При изготовлении винтовой лестницы своими руками рекомендуем учитывать следующие правила, а именно:
- при изготовлении деталей конструкции не стоит делать подступенки. Они дают возможность ноге полностью опираться на плоскость ступеньки, что удобно и более безопасно. Без подступенки нога никогда не соскользнет с лестницы;
- оптимальная ширина прохода составляет 2 м, обычно этого достаточно для любых передвижений по лестнице;
- прочность конструкции нужно рассчитывать так, чтобы она могла выдержать нагрузку минимум 2 взрослых.
Чтобы ступени были более практичными, металл обшивают древесиной. В этом случае передвижение человека по лестнице будет бесшумным, а конструкция станет более прочной.
Видео об изготовлении винтовой лестницы на второй этаж в частном доме:
Решили установить винтовую лестницу на второй этаж в частном доме? Фото и чертежи помогут реализовать проект без ошибок, с минимальными финансовыми затратами. Основные этапы проведения работ представлены на сайте. Если вы уже монтировали лестницу самостоятельно, можете поделиться своими отзывами.
thewalls.ru
Винтовая лестница на второй этаж эконом класса своими руками
Неудивительно, что вместо обычной маршевой лестницы на второй этаж в частном доме можно увидеть винтовые лестницы эконом класса, ведь они выглядят гораздо изящнее, занимают меньше пространства и намного удобнее в использовании.

РЕКЛАМА
Такая спиральная лестница представляет собой трубу, вокруг которой от крепления на центральной оси, расположены ступени и установлена пара перил. И, хотя вся эта конструкция с виду шаткая и неустойчивая, но на деле она очень крепкая и, конечно, безопасная.
Винтовая лестница на второй этаж эконом класса: тонкости установки
Винтовые лестницы на второй этаж в частных домах чаще всего используют не только по прямому назначению, но и как внутреннее украшение интерьера. Обычно они сделаны из дерева и стали, но иногда их декорируют и дополняют другими материалами.

Первое, о чем придется позаботиться решившему приобрести подобную конструкцию – где и как ее разместить в доме. Дело в том, что здесь имеются определённые нюансы, которые стоит непременно учесть.
- Нельзя монтировать лестницу слишком близко к стене, иначе возникнут проблемы со сборкой.
- Также стоит отказаться от подобной конструкции, если в доме есть маленькие дети и пожилые родители, для которых использование лестницы может быть опасно.
После того, как решено, где именно будет располагаться конструкция, нужно выбрать дизайн и отделку лестницы, которые подойдут к интерьеру дома. Обратившись к определенным фирмам, можно воспользоваться такой услугой, как персональный дизайн интерьера: профессиональный дизайнер подберет межэтажную лестницу, которая идеально подойдет к отделке дома заказчика с учётом всех его пожеланий.

Выбор винтовых лестниц необычайно широк: можно выбирать между классическим стилем и ультрамодном дизайном. Чтобы на общем фоне интерьера загородного частного дома лестница на второй этаж хорошо смотрелась и не сильно контрастировала с ним, нужно заранее подумать о том, как она будет выглядеть. Иногда такая конструкция может вообще не вписываться в общий дизайн помещения и выглядеть крайне безвкусно в доме с неподходящей планировкой.
Главное – позаботиться о качестве лестницы и приобрести ее в хорошей компании, у проверенных производителей. Также важно узнать всю информацию о покупке, во избежание возможных казусов впоследствии.
Если установка винтовой лестницы запланирована не в коттедже, а в квартире, придется позаботиться о согласовании перепланировки квартиры, кроме того возможно понадобиться консультация специалиста.
P.S. А на десерт предлагаю посмотреть видео-ролик: Винтовая лестница своими руками
stroyusnulya.ru
Винтовые лестницы на второй этаж в частном доме: фото, цены на конструкции
xCheck Also

Уютный интерьер небольшого датского домика Приглашаем вас на небольшую экскурсию по внутренним помещениям одного датского домика, оформленного в миксе скандинавского стиля с элементами эклектики.

Отделка квартиры декоративным камнем Использование камня в дизайне интерьера уже давно не диковинка. Такая отделка пришлась по душе большинству дизайнерам, которые высоко оценили достоинства натурального материала.

Чехлы на стулья: красивые идеи на фото и оригинальный мастер-класс Когда дизайнеры говорят «поиграть с текстилем», чаще всего подразумевают замену штор или декоративных подушек на диван.

Виды ремонта квартир Ведь каждый согласится, что зайти в квартиру с авторским ремонтом, куда приятнее нежели туда где ремонт не делался со времён войны… Штукатурка крошится, побелка сыпется на голову и розетки искрят — вот чего хочется меньше всего когда приходишь домой уставший.

Все оттенки белого для ванной комнаты Еще в середине 20 века белоснежные ванные комнаты стали символом богатства и изящества. И по сей день популярность этого дизайнерского решения не гаснет.

Белоснежный дизайн частного дома с панорамными окнами Домовладельцам по всему миру нравится оформлять свои жилища в белых тонах. Светлая отделка поверхностей визуально расширяет пространство, придает помещению свежий и легкий внешний вид.
Современные большие балконы Для многих людей балкон является местом хранения вещей, которые обязательно когда-нибудь пригодятся или для них просто не нашлось места в небольших комнатах.

Водопад во дворе – оттенок свежести и умиротворения Продумывая план ландшафтного дизайна участка, неплохо было бы предусмотреть в зоне отдыха организацию водных компонентов, например, пруда, ручья или, что еще лучше – водопада.

Современный интерьер кухни – новейшие разработки дизайнеров кухО важности кухни в рамках нашего жилища, о ее функциональности и практичности говорилось не мало.
Без кейворда Что необходимо знать при выборе напольного покрытия? Сегодня рынок строительных материалов предлагает широкий ассортимент товаров для отделки пола в доме.

Подходящий коврик в ванную комнату Обычный день человека начинается с посещения ванной комнаты. От того, насколько удобно и гармонично она обустроена, может зависеть настроение на весь последующий день.

Идеи для молодежного интерьера Создание молодежного интерьера – занятие увлекательное и очень интересное. Молодые люди в возрасте 25–35 лет – это уже не подростки.

Как обустроить кладовку Наверняка во многих квартирах есть кладовка или чулан. Как они обычно используются? Конечно же, собирают мусор и старый хлам, который жалко выбросить.

Граффити в интерьере Для того чтоб понять как можно задействовать граффити в интерьере и почему это стало настолько популярно, стоит разобраться для начала – что такое граффити, и узнать историю его возникновения.

Интересная квартира-студия в Тель-Авив Волна популярности оформления жилища в виде квартиры-студии захлестнула нашу страну буквально несколько лет назад, в Европе и Америке подобные апартаменты распространены давно.

Солнце тает в воде или желтый цвет в дизайне ванной Желтый цвет отождествляется с золотом и солнцем. Он лучами разбрызгивается в пространстве, проникает повсюду и освещает даже самые потаенные уголки.
vizada.ru
Лестница на второй этаж в частном доме
Двухэтажные дома уже давно перестали быть прерогативой высших сословий и директоров овощных баз. Дом с двумя этажами сможет позволить себе практически каждый застройщик, и пользоваться всеми преимуществами такого дома. Единственной интересной задачей в этом случае есть задача доступа на верхний этаж. Лестница – единственный вариант, но бесконечное количество интерпретаций. Поэтому некоторые из них мы и рассмотрим сегодня.
Содержание:
- Виды лестниц
- Выбор материала для лестницы
- Эргономика
Виды лестниц
Лестница на второй этаж в частном доме, построенная самостоятельно, решит сразу две задачи – задачу доступа на этаж и придания помещению уникального и неповторимого вида. Материалы, дизайн, схемы конструкций – все это можно комбинировать и интерпретировать, как угодно, и подстроить под любое пространство, выделенное под лестницу.

Чаще всего приходится встречать маршевые лестницы, которые делятся на несколько подвидов:
- лестницы на косоурах – выполняют из бетона, металла илидерева в виде балок, поочередно присоединенных к основанию;
- лестницы на тетивах – монтируются на одной балке;
- лестницы на больцах – в основном, деревянные или стальные конструкции с резьбовым креплением;
- лестницы винтовые – состоят из стойки, к которой прикреплены ступени и поручни.
Лестница на косоурах
Самый популярный вид лестниц. Косоур – это просто несущая балка, на которую крепятся ступени. Может органично вписаться в любое помещение, размеры такой лестницы диктуются только размерами дома, имеют высокую прочность и высокий уровень безопасности.

Конструктивно, такая лестница может иметь несколько балок, может иметь всего одну – выбор только за вами. Есть технологическая возможность построить такую лестницу, какой угодно конфигурации – ломаной, винтовой, прямой.
Лестницы с тетивой
Тетива – это балка с вырезами, которая несет нагрузку от лестницы, при этом торец ступени спрятан в прорезь и его снаружи не видно.

Выглядят такие конструкции изящно и прекрасно подходят под классическое, «музейное» решение интерьера.
Лестницы на больцах

Boltz – по-немецки «болт». Эти лестницы имеют в конструктивной основе резьбовое соединение, а ступени могут крепиться куда угодно – в балку, спрятанную в стене, на внешнюю балку пролета, на опорный столб для винтовой конструкции. Но главная изюминка в таких конструкциях – болты.
Винтовая лестница

Опорой такой лестницы служит вертикальная балка, к которой в любой конфигурации могут быть закреплены ступени. Вообще, все классификации лестниц довольно условны и служат, не для пользы дела, а для бюрократии и заядлых энциклопедистов. Вам не все равно, больцевая лестница у вас, или на косоурах? Хоть горшком назовите, лишь бы она была красивой, функциональной, безопасной и, по возможности, недорогой. А на цены очень влияет материал изготовления, поэтому попробуем рассмотреть несколько моделей, отталкиваясь именно от материала.
Выбор материала для лестницы
Традиции – основа основ в создании интерьеров, потому среди всех материалов на первом месте стоит, конечно же, дерево. Деревянная лестница может как формировать стилистику интерьера, так и подстраиваться под существующий или задуманный стиль, но ее вотчина – это классика.
Дерево
Деревянная лестница, выполненная в классическом стиле, автоматически придает помещению уют, стилистическую сдержанность и строгость. Причем не стоит стараться подбирать древесину по цвету, породе, фактуре к окнам и мебели. Это сделает интерьер слишком библиотечным, невыразительным и скучным.

Всю красоту дерево проявляет в самых неожиданных сочетаниях с металлом, пластиком, керамикой. Если рассматривать лестницу в частном доме, как отдельное произведение дизайнерского искусства, то вполне уместны даже решения в стиле фьюжн – где смешиваются элементы стилей, эпох и культур. Но тут нужно быть осторожным, чтобы не получилось излишнего налета эклектики. Вкус – единственный советчик в этом вопросе.
Металл
Безусловным плюсом к эстетической ценности вашей лестницы станет сочетание дерева с металлом. Кованые полированные поручни или перила предполагают определенный стиль, но дерево способно так разбавить пространство, что витиеватые узоры смогут придать не только торжественность, а и наоборот – непринужденность. Ковка в чистом виде редко применяется в частном домострое, потому что вес кованых изделий, все-таки, внушителен.

Металлические лестницы в чистом виде или в сочетании с пластиком – явный признак индустриального стиля в интерьере или стиля хай-тек. Металл может быть использован, как несущий материал, так и как основной декорирующий. Срок службы металлических лестниц значительно выше, чем у деревянных, но металл в хорошем качестве может обойтись дороже. Тем более, если вы решили использовать полированную нержавейку. Кроме пластика, металл отлично сочетается с камнем – гранитом, мрамором, стеклом.
Стекло
Как ни странно, но стекло стало очень распространено в лестницах на второй этаж в частных домах. Чаще всего, стеклянные лестницы находят применение в эркере – так создается иллюзия единства пространства основного помещения и пристройки, в которой расположена лестница. Особенно выгодно выглядит стекло в том случае, если все помещение продумано в минималистическом стиле. Никакой другой материал не сможет одновременно быть функциональным, и не занимать визуальное пространство.

Актуальность стеклянных лестниц в небольших коттеджах или дачах только возрастает. Кроме того, что сам материал предполагает легкость и воздушность восприятия, он может нести довольно большую механическую нагрузку. А в комплексе с правильно подобранной металлической полированной или окрашенной фурнитурой – стеклянная лестница сможет стать звездой пространства.
Эргономика
Законы эргономики никто не отменял, и даже самая прекрасная лестница должна быть в первую очередь удобной. Поэтому напоследок – несколько цифр.

Самая удобная высота ступени – 13-15 см. Глубина – не менее 30. С такими параметрами пользоваться лестницей будет удобно и ребенку, и высокому и крупному взрослому человеку. Правила предписывают высоту перил в 90 см, а ширина лестничного марша может быть не меньше, чем 100 см. Эти размеры исходят из правил пожарной безопасности и придерживаться их нужно, несмотря ни на какие стилистические изыски.
Экспериментируйте и фантазируйте. Только тогда у вас в доме будет стоять прекрасная функциональная и эстетичная лестница на второй этаж.
Читайте также Кованые лестницы в доме — фото, Дизайн лестниц на второй этаж, фото, Лестница алюминиевая 3-секционная, цена
nashprorab.com