Дизайн проект квартиры студии 40 кв м
Дизайн-проект квартиры студии 40 кв м может быть как простым, так и довольно оригинальным. Изначально квартира студия была придумана в США как жилье эконом-класса для людей творческих профессий и молодых специалистов. Далее эта мода перешла в Европу. Сейчас уже и в нашей стране не возможно представить новостройку без квартир-студий. Это жилье на порядок дешевле стандартных квартир и является многофункциональным. В одном помещении, неразделенном перегородками, располагается кухня и жилое помещение. Это главное отличие квартиры-студии от стандартной однокомнатной квартиры. И необходимо понимать, что нужно самим визуально поделить помещение на кухню — место для приготовления пищи, гостиную для приема гостей и зону отдыха для сна. Если любите больше простора можно разделить квартиру только на две зоны: кухня и жилая зона, или же заменить зону приема гостей на детскую зону, если вы имеете ребенка или планируете его появление в скором времени.

Дизайнерская планировка квартиры-студии размером 40 квадратных метров делит пространство на гостиную и спальню. Место для отдыха завешено плотной тяжелой шторой.

Проект квартиры-студии 40 кв м спланирован из расчета практичности. Между кухней и гостиной нет перегородок, что позволяет расширить пространство и сделать его более светлым.

Квартира-студия размером 40 кв. м. оформлена в скандинавском стиле.
В этой статье читайте:
Отделка помещения
Начнем знакомиться с дизайном с вариантов отделки. Рассмотрим классический вариант дизайна квартиры-студии для одного, двух человек. Вообще, чаще всего, такие квартиры сдаются без отделки, только голые стены. Следует не забывать несколько правил:
- сначала нужно подготовить поверхности, стены и пол должны быть ровными;
- хорошо продумать из какого материала будет выполнена перегородка для санузла, нужно обязательно учесть влагостойкость и шумоизоляцию материала;
- качественный материал более дорогой, экономить нужно с умом.
Обычно зона кухни уже выделена. Большинство однокомнатных квартир-студий продают сейчас уже со встроенной кухонной бытовой техникой.
Обустройство однокомнатной квартиры студии начнем со стен. Стены в квартире можно оклеить простыми обоями, предварительно разделив все помещение на три зоны. Можно использовать обои под покраску или просто покрасить стены. Для начала необходимо выбрать цветовую гамму. Она зависит только от вашего вкуса и фантазии. Каждая зона может отличаться от другой цветом или даже материалом отделки. Допустим стены, находящиеся в зоне кухни между столами и навесными шкафами, мы отделаем плиткой пастельных или наоборот ярких цветов, все зависит от цвета шкафов и вашего желания.

Дизайнерский проект делит квартиру-студию на три приблизительно равных участка. Гостиную от спальни отделяют огромные раздвижные двери.

Квартира-студия площадью 40 квадратных метров в одной из новостроек Москвы.
Стены над шкафами можно просто покрасить, максимально подобрав цвет краски под цвет плитки. Стены же в зоне гостиной делаются другим цветом и из другого материала, как вариант это могут быть фотообои. Не забывайте, что обычно по планировке в центре комнаты находится окно, которое необходимо поменять или покрасить, чтобы оно гармонировало с интерьером однокомнатной квартиры. Если есть финансовая возможность, а этаж выше пятого, можно установить панорамное окно, что увеличит количество света в комнате. И выглядеть будет стильно, дорого и красиво. Если же в комнате два окна и одно из них находится напротив зоны кухни, можно использовать его для обустройства на нем обеденной зоны путем замены подоконника, его расширения. Для зоны отдыха, места для сна можно использовать набивные обои. Так, используя отделку стен, мы зонировали квартиру. Главное, чтобы все было гармонично и как бы вытекало одно из другого.
На следующем этапе необходимо продумать отделку потолка и освещение так, чтобы подчеркнуть это разделение. Для этого можно использовать светильники различных конфигураций и цветов. Или светильники разной длины.
Интерьер однокомнатной квартиры невозможен без дизайна пола. И завершить разделение на зоны должна отделка пола. Покрытие пола в зонах отдыха и сна может быть одинаковым и по цвету и по структуре. Покрытие же зоны кухни может отличаться по цвету и по используемому материалу. Например, на кухне ламинат используется более темного оттенка, а в жилой зоне и зоне отдыха ламинат на несколько тонов светлее или же вообще пол под паркет. Хотя, если рассматривать обустройство квадратных метров пола со стороны удобства для уборки, покрытие может быть одинаковым, а разделить его на зоны можно используя различные коврики.

Квартира-студия размером 40 квадратных метров разделена при помощи раздвижных дверей на кухню-гостиную и спальню.

Квартира-студия оформлена в скандинавском стиле. Светлый, нежный интерьер органично смотрится на площади 40 квадратных метров.
Мебель и бытовая техника
Необходимо хорошо продумать какая мебель нужна? Для начала нужно решить, что лучше подойдет для сна, диван или диван-кровать, или может быть раскладная кровать, или это будет вообще кресло-кровать, или, возможно, встроенная кровать, которая в течение дня вообще выглядит как шкаф. Нужно обдумать, где будут храниться постельные принадлежности. Вообще мебель для обустройства квартиры студии должна быть не громоздкой. Она должна быть практичной и функциональной. Лучше использовать шкафы-купе, небольшие столики на колесиках, различные ширмы, которые подчеркнут разделение комнаты на зоны.
Теперь нужно отделить зону кухни от зоны отдыха. Можно использовать для этого небольшой диван, расположив его спинкой к кухонной зоне. Этот же диван будет служить местом для приема гостей. Если место позволяет можно расположить около дивана два кресла, или, наоборот, если наблюдается дефицит площади, можно поставить только кресла.

Элегантный интерьер в квартире-студии интересен правильно подобранной мебелью для гостиной из кожи. Спокойное оформление в пастельных бежевых тонах идеально подходит для обустройства семейного дома.

Двухъярусная квартира-студия общей площадью 40 кв м оформлена в стиле минимализм.
Далее обустроить саму кухню. Должно быть несколько поверхностей, одна — для приготовления пищи и другая — обеденная, которая может быть выполнена как стойка бара, так и путем увеличения подоконника или просто размещением стола-трансформера. Дополнить интерьер однокомнатной квартиры в зоне кухни помогут стильные табуреты или стулья. Решать только вам в зависимости от планировки и финансовых возможностей.
В зоне отдыха помимо мест для сидения необходимо оборудовать стол для приема гостей. Стол лучше использовать небольшой на колесиках, хорошо, если он будет стеклянный.
Продумать, нужен ли стол для компьютера, или компьютер будет заменен на ноутбук. Телевизор можно поставить на невысокий комод или повесить на стену в целях экономии места. Марку телевизора необходимо выбирать из потребностей. Возможно, это будет домашний кинотеатр. Также необходимо решить, какая еще бытовая техника необходима, и где она будет размещаться.

Небольшая квартира-студия благодаря грамотной планировке становится полноценным жилищем с отдельной спальней, которая отгорожена стильной перегородкой из стекла.

Квартира-студия площадью 40 кв м оформлена в современном стиле. Функциональный, практичный дизайн идеален для малогабаритных квартир.
Отделка санузла

Лаконичный интерьер санузла в стиле минимализм органично вписывается в небольшое пространство.

Для декора ванной комнаты дизайнер подобрал керамическую плитку в стиле арт деко. Вычурный узор вытянутой формы делает потолки визуально более высокими.
Бюджетный вариант оформления квартиры-студии. Видео
Пример оформления квартиры-студии площадью 40 квадратных метров
luckydecor.ru
Дизайн однокомнатной квартиры 40 кв м – лучшие фото и проекты на 2018

В этой статье вы узнаете, что дизайн однокомнатной квартиры 40 кв м может быть очень комфортным, свободным и вызывающим восхищение, если правильно к нему подойти. Dekorin представляет вам более 15 проектов и вариантов дизайна квартир размером 40 кв. м., сочетающих в себе уют, стиль и умную планировку! В статье мы расскажем о современных тендециях в дизайне интерьера в 2018 году.
40 кв. м. — такова средняя площадь однокомнатных квартир в большинстве современных многоэтажек. В отличие от хрущевок, площадь которых составляет 28−32 кв. м, эти «однушки» предлагают больше разнообразия в планировке и дизайне пространства, и даже открывают возможность обустроить 2 отдельные комнаты — спальню и гостиную или общий зал и детскую.
1. Красивый дизайн квартиры студии 40 кв м — фото и план жилища
Владелица этих апартаментов пожелала, чтобы дизайн её квартиры был чистым, простым, элегантным и вневременным. Как вы считаете: удалось ли дизайнеру достичь этого?

Чтобы интерьер выглядел просторнее, все отдельные зоны этой квартиры были непосредственно связаны друг с другом. Кухня объединена с гостиной, в ванную ведет прозрачная дверь, а спальня отгорожена от гостиной полуоткрытой перегородкой в виде вертикальных жалюзи. И вот вместо нескольких маленьких комнатушек получилось одно, но очень свободное и стильное помещение!


Среди других важных элементов дизайна этой квартиры 40 кв м стоит отметить светлую цветовую палитру и отсутствие массивных подвесных светильников, которые «воруют» воздух у интерьера. Обратите внимание, что встроенные точечные светильники по периметру потолка гостиной как бы отделяют эту зону от остальных областей квартиры.


2. Украинский дизайн квартиры 40 кв м — фото и 3D проект
Следующая стильная квартира площадью 40 кв м находится во Львове и была разработана дизайнерами Романом Вербищуком, Юлианной Вербой и Любовью Лазорив. Как видно на фото, кухня здесь намного больше и удобней, чем в предыдущем варианте. А диван и кровать, несмотря на то, что стоят почти впритык, разделяются прозрачной стеклянной перегородкой.
В результате дизайн квартиры выглядит открытым и воздушным, а стильная плитка на кухне и в ванной приносит в нее интересную изюминку.





3. Дизайн двухкомнатной квартиры на площади 40 кв м — фото и план
Если в предыдущем варианте дизайна однокомнатной квартиры 40 кв м, выбор был сделан в пользу большой кухни и ванной, то здесь — в пользу просторной спальни. Однако, как вы видите, здесь также была установлена стеклянная перегородка между залом и опочивальней, чтобы дом выглядел просторным и светлым. В дизайне также использовались природные материалы в контрасте с яркими оттенками интерьера. И кстати, модная геометрическая плитка и в этом дизайне квартиры сыграла не последнюю роль!


Также читайте: 15 малогабаритных квартир в скандинавском стиле 

Еще раз просим вас обратить внимание на отсутствие габаритных светильников, а также на открытые полки и кровать на платформе со встроенными ящиками. Умная экономия пространства в деле!
4. Комфорт и шикарный стиль в квартире 45 кв м
По дизайну этой двухкомнатной квартиры и не скажешь, что в ней всего 45 кв м! Открытые стеллажи, встроенные в стены и за диваном, позволяют с умом использовать каждый квадратный сантиметр пространства и даже создают иллюзию дополнительной высоты.


Столовая зона объединена с гостиной, спальня расположена в отдельной комнате, а вот небольшая кухня может закрываться передвижной перегородкой, что очень удобно, когда нет сил или времени навести в ней порядок.




5. Скандинавский дизайн однокомнатной квартиры 35 кв м
Этот дизайн однокомнатной квартиры был включен в наш список лучших проектов во многом благодаря тому, что здесь установлена кровать-чердак. Именно этот предмет интерьера в сочетании с лаконичным скандинавским стилем, заставляет это жилище выглядеть просторным, стильным и очень уютным. Ну и, конечно же, окно в стене между кухней и гостиной придает ему еще больше очарования и свободы.




6. Современный дизайн однокомнатной квартиры 40 кв м
Следующий в нашем списке — яркий и сочный дизайн квартиры 40 кв м в городе Софие, столице Болгарии. Концепция этого жилища была вдохновлена LEGO, поэтому некоторые части интерьера — подставка под ТВ, полки, кухня и даже картины на стене — похожи на интересный паззл. Несмотря на яркие акценты, большая часть интерьера всё же была выполнена в белом цвете, а нейтральный дизайн спальни идеально подходит для отдыха и расслабления. Попадая в такой интерьер вы будете заряжаться позитивными эмоциями и хорошее настроение вам обеспечено.




Также читайте: Объединение кухни с гостиной — 30 удачных примеров для вдохновения
7. Дизайн квартиры студии 45 кв м — фото и план проект
Эта потрясающе стильная квартира площадью 45 кв м расположена в Москве и была разработана дизайн-студией INT2. Как и положено студии, она состоит из всего одной комнаты, которая содержит в себе отдельные зоны гостиной, спальни, кухни и ванной комнаты. Некоторые из них разделены небольшими участками стен, другие — шторами. Дизайн квартиры оформлен в прекрасном сочетании пастельных тонов, а также скандинавского и современного стилей.








8. Необычная планировка и дизайн 1 комнатной квартиры 40 кв м
Эта маленькая однокомнатная квартира выделяется не только необычной планировкой, но и красивой комбинацией японского и скандинавского минимализма. Светлые оттенки древесины и нейтральная цветовая палитра здесь выгодно подчеркиваются синими и желтыми деталями, в том числе диванными подушками, мягкими сидениями стульев и обшивкой стены в спальной зоне. Как вам идея?



9. Дизайн однокомнатной квартиры 40 кв м для матери и дочки
Этот дизайн однокомнатной квартиры был создан польской фирмой Pressenter Design специально для матери с 6-летней дочерью. Проект жилища призван соответствовать растущим потребностям ребенка, для чего здесь было обустроено просторное место для учёбы в комплекте с подвесными шкафчиками для книг и прочих принадлежностей. Низкая подставка под телевизор и такой же высоты журнальный столик в сочетании с общим минимализмом дизайна делают эту квартиру очень легкой и свежей, а темное дерево на фоне гладких белых поверхностей создает просто шикарный эффект. Мы полагаем, что возмножно такой дизайн однокомнатной квартиры подойдёт и для супружеской пары.





Также читайте: Лучшие идеи для создания уютных зон в больших комнатах
10. Дизайн двухкомнатной квартиры 40 кв м: оформление гостиной и детской
Наверное, многих читателей этой статьи волнует вопрос: как обустроить отдельную детскую комнату в дизайне двухкомнатной квартиры 40 кв м? В качестве ответа мы предлагаем вам фото двух квартир, где гостиная представляет собой одновременно и спальню родителей, а отдельная детская легко вмещает 2-х детей. Чтобы кое-кто не говорил, что живя в 40 кв. метрах нельзя себе позволить второго ребенка)))
Первая из этих квартир отличается очень элегантной гостиной, объединенной с уютной кухней, и яркой детской комнатой с двухэтажной кроватью в морском стиле, который так любят многие малыши.







Второй дизайн двухкомнатной квартиры 40 кв м выполнен в стиле минимализм и отличается многофункциональной мебелью при том, что в детской комнате стоят две отдельные односпальные кровати.





11. Современный дизайн квартиры 40 кв м с элементами luxury
Просто удивительно, но эта двухкомнатная квартира с роскошной спальней имеет площадь всего 37,5 квадратных метров! Маленькая прихожая с бархатной банкеткой в нише переходит в довольно просторную кухню, а основная комната разделяется перегородкой на гостиную с рабочим местом и очень красивую спальню. Как и в большинстве маленьких квартир, белый цвет был взят за основу и разбавлен яркими акцентами желтого (стена в прихожей, кухня, стулья в гостиной) и бирюзового (спальня) тонов. В целом эта маленькая квартира в Санкт-Петербурге выглядит модной и очень удобной. Представленный на фото дизайн двухкомнатной квартиры — образец максимально выгодного использования пространства!






12. Стильный дизайн квартиры студии 40 кв м с идеальной планировкой
Следующие две квартиры в нашем списке имеют очень похожую планировку, при которой только ванная комната располагается в отдельном помещении, а прихожая, кухня, гостиная и спальня объединены в одно целое. Для удобства спальня может быть отделена от гостиной стеклянной перегородкой со шторами или (как во втором варианте) гибкой рулонной перегородкой. Благодаря отсутствию стен и дверей (кроме ванной комнаты) достигается общая легкость и одухотворенность интерьера. Стильный дизайн квартиры студии станет вашей визиткой карточкой при встрече гостей.




Как видите, в первом случае для украшения интерьера и отделения кухни от прихожей используется интересная декоративная перегородка с узором от пола до потолка. В отличие от целостной стены, она сохраняет единство пространства, принося в него немного креатива, но не более того. Во втором варианте проектируя дизайн квартиры студии дизайнеры решили вовсе не разграничивать эти зоны.





Интересно, какой вариант дизайна однокомнатной квартиры 40 кв м из этих двоих вам нравится больше? Поделитесь своим мнением в комментариях!
13. Роскошный дизайн квартиры площадью 35 кв. м.
Пока мы плавно приближаемся к завершению этой статьи, уже очевидно, что прозрачные стеклянные перегородки между залом и спальней — это ключевой момент в создании свободного и комфортного дизайна квартир площадью до 40 кв м и превращения маленькой «однушки» во вполне удобную «двушку». Данная шикарная квартира размером 35 квадратных метров не стала исключением. Особенным её делает смелый дизайн и цветовая схема — вместо светлых тонов и минимализма здесь мы видим яркие фиолетовые и бирюзовые акценты на стильном сером фоне, а также массивные светильники (расположенные в правильном месте!), камин и совершенно ошеломительную мраморную ванную комнату.
Кто посмеет сказать, что это крохотное жилище не является роскошным?




Также читайте: Стильные разделительные перегородки в интерьере
14. Современный дизайн квартиры 40 кв. м. в стиле китайский минимализм
С одной стороны, этот дизайн однокомнатной квартиры 40 кв м включает в себя только простые декоративные элементы, но все вместе они создают очень красивую и жизнерадостную атмосферу жилища.




Минималистская мебель строгих прямоугольных форм очень элегантно и свежо выглядит на фоне ярких зеленых, розовых и фиолетовых акцентов. Спальня, отделенная романтической полупрозрачной перегородкой, обладает большим шкафом-купе, а ванная, куда ведет дверь из кухни-гостиной, имеет узкую душевую кабину, благодаря которой здесь удалось вместить и стиральную машину.
15. Дизайн квартиры студии 40 кв м в молодежном и креативном стиле
Завершаем наш сегодняшний пост очень милой, молодежной и уютной однокомнатной квартирой в городе Араде, Румыния. Кроме приятной цветовой схемы, сочетающей в себе легкие нейтральные тона с деталями практически всех цветов радуги, вас может приятно удивить полка-перегородка в гостиной, велосипед в ванной, кровать на платформе и подвесной шкаф-стол. Все в этой потрясающей квартире так и дышит любовью к жизни и окружающему миру! Возможно дизайн квартиры студии в молодежном стиле придётся по душе и людям более старшего возраста.





Мы очень старались собрать здесь самые разнообразные дизайны квартир для людей с разными вкусами и потребностями. Поэтому будем очень рады получить узнать ваше мнение. Пожалуйста, поделитесь с нами и нашими читателями: какой вариант дизайна квартиры 40 кв м вам понравился больше других? Что для вас важнее: большая кухня или просторная спальня? Уют или практичный минимализм? Прозрачные перегородки или твердые стены?
Еще больше идей для дизайна маленьких квартир вы можете получить в наших статьях:
Стильные квартиры студии (40 фото интерьеров)
17 лучших дизайнов маленьких квартир
thewalls.ru
Дизайн однокомнатной квартиры 40 кв.м.

Восхищаться огромными домами с шикарным дизайном, проживая при этом в небольшой квартире — многим знакомая ситуация. Но суровая реальность такова, что не все могут позволить себе жилье с большой площадью, отдавая предпочтение малогабаритным пространствам. Современный дизайн интерьеров продолжает доказывать, что это — не такой уж плохой вариант. Даже в однокомнатной квартире в 40 кв.м. можно создать уютное и комфортное «гнездышко», а мы расскажем о том, как это осуществить.
Особенности дизайна «малогабариток»
Квартиры с маленькой площадью — особый «клиент», который требует соответствующего подхода. Для начала, необходимо определить, кто будет проживать в апартаментах: молодой холостяк или многодетная семья? В первом случае отлично подойдет пространство с открытой планировкой, в котором нет необходимости оформлять отдельные приватные зоны. Во втором — все немного сложнее, но не так безнадежно. Грамотное зонирование помещения с помощью штор, перегородок разной высоты и функциональной мебели помогут разделить площадь так, что места хватит всем.
Далее следует определиться со стилистикой. Маленькая квартира здесь также выдвигает особые требования. Лучше отдать предпочтение стилю, который не предполагает большое количество мебели и декора — они «съедают» драгоценные метры и без того небольшой комнаты. К примеру, классический стиль или прованс будут выглядеть нелепо, а вот минимализм или лофт способны расширить пространство и подстроиться под специфику планировки.
В современном дизайне интерьеров уже существует множество ловких приемов, которые позволят визуально увеличить небольшую площадь. К примеру, зеркальные поверхности создают эффект «второго измерения» и словно продлевают комнату. Светлая цветовая гамма не создает границы, в то время как темные тона наоборот — могут сузить квартиру. Но это не значит, что нужно бояться черный цвет и всячески его избегать — при грамотной планировке он может придать интерьеру зрелое ощущение, не влияя на пространство.
Обладатели высоких окон обязательно должны воспользоваться этим преимуществом и, по возможности, не создавать преград для естественного света — лучше, если он заполнит всю комнату.
Небольшой совет напоследок — не стоит забивать квартиру лишними вещами, а лучше обойтись только самым необходимым.

Однокомнатные квартиры 40 м2 — фото
Для лучшего закрепления материала, предлагаем вам ознакомиться с яркими дизайн-проектами квартир, в которых воплотились все вышеперечисленные рекомендации.
1. Стильный дизайн однокомнатной квартиры 40 кв.м.
Дизайнерам волгоградской студии Solo Design удалось стильно и гармонично оформить эту «однушку». На небольшой площади в 40 квадратных метров они разместили спальню, кухню, гостиную и рабочую зону, воспользовавшись принципом зонирования.
Благодаря отсутствию массивных перегородок и стен, квартира визуально кажется больше и не создает ощущение замкнутости. Спальня отделяется от остального пространства шторой, при этом являясь его продолжением.
Принцип open space позволил воспользоваться приглушенной темной цветовой гаммой даже в жилье с такой небольшой квадратурой. Но в данном случае серые стены и черные предметы мебели вместо того, чтобы уменьшить пространство, создают уютную атмосферу. А большие окна пропускают естественный свет и наполняют помещение «воздухом».









2. Брутальный лофт в однокомнатной квартире 40 кв.м.
Еще один пример того, что не стоит бояться темных оттенков. Объект расположен в Москве и представляет собой однокомнатную квартиру 40 кв.м. с элементами лофта. Проект был разработан дизайнерской студией Int2Architecture, перед которой стояла непростая задача: в короткие сроки создать стильное и презентабельное жилье для сдачи в аренду.
Ограниченный бюджет только усложнял реализацию, но дизайнеры использовали нестандартные решения и оформили жилье максимально стильно и дешево.
Покраска кирпичных стен, открытая проводка, бетонный потолок — все это позволило сэкономить на отделке и приблизиться к стилистике лофта. В интерьере присутствуют необычные винтажные предметы мебели — вроде обеденных стульев или подстолья для раковины, которые были куплены на блошином рынке.
В квартире практически нет массивных перегородок и все жилые зоны представлены в одном пространстве. Но из-за этого не создается ощущение нагромождения предметов — благодаря целостной стилистике и отказа от традиционной большой кухни.








3. Уютное гнездышко — дизайн однокомнатной квартиры 40 кв.м.
В отличие от предыдущего проекта от Int2Architecture, эта квартира выполнена в светлых тонах и оформлена для комфортного проживания молодой пары.
Дизайнеры использовали принцип рационального зонирования, благодаря которому удалось создать зоны кухни, столовой, гостиной, спальни и кабинета — и все это, напомним, в маленькой однокомнатной квартире на 40 кв.м.!
В проекте реализовано множество интересных идей для небольшой площади. К примеру, спальню с кабинетом объединили в одну зону и разместили на пьедестале, который включает дополнительные места для хранения вещей. Высокая перегородка отделяет приватную область от жилой, но не создает преград для проникновения естественного света. Мобильная зона столовой легко перемещается, открывая дополнительное пространство.







4. Дизайн однокомнатной квартиры 40 кв.м. на мансарде
Чудесный проект, реализованный дизайнером Евгенией Островской — это квартира в «Даниловской мануфактуре» в Москве. Задачу просторного оформления подобного жилья усложнял тот факт, что это мансарда, а значит часть помещения сужается за счет наклонного потолка. С другой стороны, чердачное пространство выглядит уютно и открывает новые возможности для планировки.
Стиль лофт для оформления интерьера был выбран не просто так: он отлично вписывается в атмосферу мансарды и позволяет вписать функциональные и практичные детали. Так, для расширения площади использовали мебель-трансформер. Рядом с входной дверью расположена система для хранения вещей, которая перетекает в зону кухни. Наличие зеркал на шкафах визуально расширяет пространство.
Дизайнеру удалось разместить здесь все необходимое для жизни, и даже камин — казалось бы, непозволительную роскошь для такой малогабаритной «однушки».








5. Однокомнатная квартира 40 кв.м. для семьи из трех человек
Кажется, что маленькая квартира с одной комнатой точно не подходит для комфортного проживания матери с двумя детьми, когда каждый член семьи нуждается в личном пространстве. Но дизайнер Ирина Ежова решила доказать, что это не так, и предложила свои варианты решения проблемы.
Все началось с перепланировки: в единственной комнате был возведен подиум, где расположилось спальное и рабочее место для одного из детей. Зона обособлена с помощью функциональных шкафов разной высоты, а сама возвышенность также подходит для хранения вещей.
Для второго ребенка утеплили лоджию и превратили ее в место для отдыха и работы.
Раскладной диван в ночное время хозяйка использует в качестве кровати.
Светлые тона и многоуровневая система освещения наполняют интерьер этой квартиры простором и разнообразием, визуально увеличивая небольшую площадь.







6. Современная однокомнатная квартира 40 кв.м. – дизайн интерьера
Украинская студия Rover Building Company показала, что можно создать функциональный и яркий интерьер даже в малогабаритной однокомнатной квартире. Красочный дизайн, а также уютные элементы декора «оживляют» пространство и позволяют забыть о его площади – всего-навсего 40 м2.
Студийная планировка — отличный вариант для жилья такого типа. Отсутствие стен компенсируется низкими перегородками.
Как и в других проектах, спальню здесь поместили на пьедестал, оградив ее стеклянной стеной. С одной стороны, такая конструкция не создает препятствий, а с другой — прочерчивает плавную границу между жилой и личной зонами.









7. Дизайн однокомнатной квартиры 40 кв.м. в Киеве
Объект расположен в киевском ЖК «Комфорт Таун» и представляет собой небольшую квартиру-студию площадью 40 кв.м. Над проектом работала украинский дизайнер Ирина Сазонова.
Приватная зона здесь может выступать в качестве отдельной комнаты благодаря плотной шторе и многофункциональности помещения. Дело в том, что она вмещает в себя рабочее место, кровать и небольшую гардеробную.
К слову, для экономии драгоценных квадратных метров дизайнер старательно избегала громоздких шкафов и ящиков, отдавая предпочтение открытым полкам и скрытым местам хранения.





8. Однокомнатная квартира-трансформер площадью 40 кв.м.
Итальянская дизайн-студия Brain Factory создала проект однокомнатной квартиры 40 кв.м., концепция которой основана на возможности изменения планировки в любое время в течение дня.
Основа интерьера этой квартиры — детально продуманный модуль, который легко превращается в компактный кухонный стол, обеденный стол или рабочую зону.
Не менее важный элемент — в буквальном смысле подъемная кровать, которая поднимается благодаря прочным лентам и прячется в специальной нише на потолке.









Видео: Дизайн однокомнатной квартиры 40 м2
thewalls.ru
Планировка квартиры студии 40 кв м фото
Доброго времени суток, уважаемые читатели! Сегодняшняя наша статья расскажет, как будет выглядеть планировка квартиры-студии, 40 кв. м. фото примеры, конечно же, будут помогать в этом. Кроме того, мы предоставим несколько практических советов, которые помогут сделать правильное и эстетичное оформление.
Мы поможем тем людям, которые огорчены небольшими габаритами своего помещения, но им просто необходима комфортабельная зона для отдыха и работы, приема гостей и пищи. Приступим же к изучению данного вопроса детально.

Первые шаги в перепланировке
Перво-наперво, вам понадобится план, нарисованный от руки на бумаге или с использованием компьютерных технологий. Идеальным вариантом считается трехмерная модель, которая раскроет будущий проект со всех сторон. Этот чертеж должен учитывать все ваши потребности, которые необходимы для квартиры.
Не забывайте, что основная задача таких перестроек – увеличение полезного пространства.
Приступая к такому ремонту, убедитесь, чтобы все юридические аспекты были в порядке, и вы не столкнулись с проблемами в дальнейшем. Вам понадобится взять разрешение у соответствующих инстанций. Иногда, на это уходит большой промежуток времени, учитывайте это.

Самый первый и популярный вариант для перепланировок, который мы может представить – деинсталляция перегородок, разделяющих столовую и гостиную. Это первая и важная стадия перемен. Правильность выполнения отразиться в дальнейшем – чем качественнее будет выполнена процедура, тем комфортнее будем Вам. В нашей статье представлено несколько фото готовых проектов, чтобы вы понимали, как это должно выглядеть в итоге.

Цветовое оформление
После выполнения всех «силовых» действий, можно приступить к более спокойным процедурам. Начнем с подбора цвета для дизайна вашей студии. Вам известно, что цвета по-разному влияют на психофизическое состояние.
Например, обилие желтого тона или оранжевого будет привлекать внимание на деталях. Коричневые и красные оттенки вообще рекомендуется использовать в крайних случаях – они могут утомлять, если присутствуют в обилии.

В качестве оптимальных цветов для маленьких квартир выбраны песочные оттенки, кремовые, бежевые и пастельно-голубые.
Подойдите к выбору цветового оформления со всей серьезностью, ведь именно от этого вы будете отталкиваться при выборе фурнитуры, штор и т.д. В наших фото примерах собрано несколько принципиально различных цветовых решений, чтобы вы могли оценить каждое по достоинству.

Подбор мебели для студий
Теперь необходимо выбрать, какую мебель Вы установите в свое помещение. Прежде всего, она должна быть малогабаритной, комфортабельной и создавать чувство гармонии с остальным окружением. Постарайтесь избавиться от габаритных шкафов или кроватей – в маленькой квартире-студии, они если и вместятся, то будут смотреться очень неуместно.
Расстановка, кстати, имеет не меньшее значение, чем подбор.
Самым оптимальным вариантом для небольших квартир считается мебель-трансформер. Иначе их еще представляют как встроенная гарнитура. Вы с легкостью сможете спрятать кровать в шкаф, тем самым, освободив немного места, которое пригодится при выполнении повседневных дел. Сегодня, все популярнее становится горка-стенка, тоже хороший вариант для студий.

Еще одна идея, заслуживающая отдельного внимания – складные диваны, которые могут выполнять сразу несколько функциональных задач. К примеру, так появляется спальные места, боксы для постельного белья, зона для отдыха и т.д. И все это в пределах одного элемента фурнитуры.

Если вы или ваша семья любят ужинать вне дома, большой кухонный стол вам ни к чему. Замените его складным вариантом и останетесь только в выигрыше.
Как квартира должна приветствовать
Т.к. студии обладают небольшими габаритами, входные двери запросто могут создавать глухие пространства. В таком случае, лучше избавиться от вешалок или тумбочек, которые будут мешаться в любом случае. Простой способ организации вещей и обуви – установка гардероба или кладовой.
Таким образом, неплохо экономится место для жилья и исчезает лишние элементы.
Создайте отдельный уголок, в котором будет находиться персональный компьютер. Будет неплохо, если там же будут находиться все необходимые для работы бумаги и папки. Как вариант – настенные полки, экономящие место.

Несколько слов о гармонии
Гармония – очень важный фактор при ремонте. Она поможет избегать ненужных раздражений. К тому же, придя домой после трудного рабочего дня, вы будете расслабляться. Вот некоторые правила:
- Если ваша мебель имеет цвет темного ореха, присмотритесь к шторам желтых, зеленых и серых тонов. Невежественно будет купить их в том же цвете.
- Для тех, кто отдал предпочтение черной фурнитуре, советуем подбирать элементы в красных, фиолетовых, малиновых тонах. Фиолетовый лучше брать пастельный, чтобы не получилось слишком черно и скованно.

- Оттенки сосны и бука гармонируют с оранжевыми и серыми шторами. Бежевый и желтый в таком случае лучше избегать.
- Отделка из красного дерева плохо сочетается, как бы это странно не звучало, с красными оттенками.
Визуальное увеличение пространства
Как уже не раз оговаривалось, для зрительного увеличения свободного места, выбирайте светлые цвета и оттенки, вроде белого, бежевого, голубого.

Если вы не можете обойтись без темного цвета, старайтесь, чтобы оно не выступало в качестве основы. Например, используя темный оттенок для оформления стен, подбирайте белую мебель, которая расширит вашу обитель.

Свет и все, что с ним связано
Освещенность маленькой квартиры занимает важное место, для создания правильного дизайна. Придерживайтесь основного правила в этом вопросе – чем больше, тем лучше. Не используйте громадную люстру, она здесь просто не нужна. Рынок представляет огромный ассортимент светильников различной формы и размеров.

Все предложенные советы легко реализовать своими руками, без привлечения специалистов. Надеемся, вы почерпнете что-то для себя и будете гордиться собственным ремонтом. Удачи!
forbau.ru
Современный дизайн студии 40 кв. м.
Смотреть фотогалерею … фото
5 9 4 10
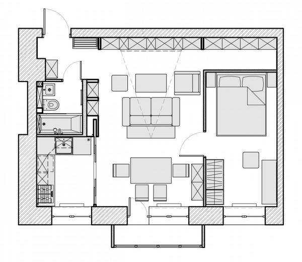
На получившейся площади нашлось место для всех функциональных зон, необходимых для комфортабельного проживания — гостиная, кухня-столовая удобны и комфортны.
Чтобы не дробить пространство студии и не затемнять ее, спальную зону с рабочим местом отделили от остальных с помощью раздвижных перегородок из стекла.
Особенность дизайна квартиры не только в том, что маленькие неудобные помещения превратились в просторную студию, но и в легком, воздушно настроении, которое удалось в ней создать.
Способствуют этому голубой и белый тона отделки, и деревянные детали, вносящие уют и теплоту. Никакой навязчивости, никаких “кричащих” деталей, способных надоесть или вызвать раздражение.
При этом в дизайне студии 40 кв. м. много интересных находок, создающих настроение. Это и кирпичная стена в кухне и зоне спальни, легкая конструкция из реек, подиум, специально выстроенная ниша, в которой поселились книги, а также опоясывающая кухню и ванную узорная плитка.


Название:Apartment 40 sq m
Архитектор:Curly studio
Год строительства:2014 г.
Площадь:40 м2
design-homes.ru
Дизайн квартиры студии 40 кв. м. Современный стиль в серых цветах. Фото
Взаимодействие свободного пространства и предметов интерьера всегда волновало архитекторов и дизайнеров. Этот вопрос становится особенно актуальным, если требуется разместить на небольшой площади множество важных вещей эргономично и с комфортом. Как всякая хорошая работа, представленный дизайн квартиры 40 кв. м впечатляет. На примере этого жилища, решённого в изысканной серо-коричневой гамме, показано как можно удачно сочетать различные виды отделки и предметы мебели.

Дизайн квартиры студии 40 кв. м. Фото

Дизайн студии 40 кв. м. Фото

Барная стойка для разделения пространства. Фото

Дизайн светлой квартиры студии 40 кв. м. Фото
Комната-студия отделена от коридора перегородкой в виде кирпичной стены. Благодаря открытым проёмам, прихожая составляет единое целое с комнатой. Только покрытие пола из плитки чётко указывает её границы. Основное преимущество прихожей — наличие вместительных шкафов.
Дизайн квартиры 40 кв. м продуман и логичен. Хотя комната имеет несколько функциональных зон: кухонную, столовую и зону для отдыха, они не подавляют друг друга и не разрознены в пространстве. Их объединяет общее стилевое и цветовое решение. Плиткой под кирпич, как и перегородка в комнате, оформлен «фартук» и барная стойка на кухне. Покрытие пола выполнено из ламината, имитирующего дубовую доску. Повторяет его фактуру потолок с фальш-балками. В зоне отдыха установлен просторный угловой диван. Так как одна его спинка является частью барной стойки, он не кажется громоздким. В столовой зоне находится довольно большой обеденный стол, но из-за прозрачной стеклянной столешницы он почти незаметен. И только стулья с мягкими сидениями-подушками притягивают к себе внимание.
Каждая функциональная зона имеет собственное освещение. В области кухни над барной стойкой висят три разных по цвету светильника, над обеденным столом — оригинальные светильники-шары, зона отдыха освещается настенными бра.

Дизайн квартиры студии 40 кв. м. Фото

Второй вариант дизайна студии 40 кв. м. Фото

Дизайн квартиры 40 кв.м во втором варианте по своей функциональности почти не отличается от первого — отсутствует лишь барная стойка и журнальный столик (вместо него появился пуф). Прежним остаётся расположение всех предметов мебели, меняется лишь отделка фасадов, стен, потолка и полового покрытия. Несколько по-другому организовано освещение. Всё жилое пространство освещает люстра в виде огромного кристалла и точечные светильники; их дополняет необычно высокий торшер.
Горячие темы. Советуем почитать!
postroiv.ru
Дизайн однокомнатной квартиры 40 кв м: 5 современных планировок.
Выбирая дизайн однокомнатной квартиры, хочется не только оформить ее в современном стиле с необычными деталями, но и решить все функциональные задачи. Как на 40 квадратных метрах разместить гостиную, рабочее место, спальню и вместительные места для хранения. Мы поделимся с вами лучшими современными планировками для однушки.
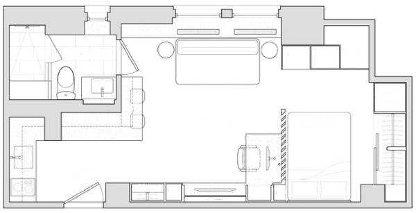
1. Скандинавский дизайн однокомнатной квартиры 40 кв.м.
Для этой планировки однокомнатной квартиры характерен легкий светлый дизайн в сочетании с вместительными местами для хранения и удобным спальным местом.

Особенностью этого проекта является не только современная открытая планировка, но и две вместительных кладовки. Большая гардеробная находится прямо при входе. В открытой части – это фактически часть прихожей с местом для обуви и верхней одежды. Закрытый шкаф за ней предлагает достаточно места для хранения вещей.

Вторая кладовка находится между ванной и кухней и служит для размещения запасов продуктов и крупногабаритной техники, такой как пылесос.

Барная стойка, отделяющая кухню от жилой зоны, с одной стороны, четко зонирует пространство; с другой стороны, визуально расширяет общую площадь квартиры.

Удобная кровать находится в нише, там же размещен с небольшой комод и навесной шкаф, чтобы необходимые мелочи всегда были под рукой.
Подробнее познакомиться с дизайном этой однокомнатной квартиры в можете в небольшом видео:
2. Светлый дизайн однокомнатной квартиры-студии 32 кв.м
Максимально светлый и чистый дизайн в этой небольшой квартире достигнут благодаря умелому использованию визуального эффекта зеркальных поверхностей.

Два основных места для хранения вещей в квартире – шкаф для верхней одежды рядом с входной дверью и два шкафа с антресолью в комнате. Зеркальные фасады шкафов создают удивительное пространство на этой небольшой площади.

Основной цвет интерьера – светло-серый, который мягко дополняется серой мебелью и аккуратными оттенками зеленого. Большой застекленный балкон, который мы видим в плане квартиры, предполагается летом использовать как столовую.

Более подробно познакомиться с дизайном этой однокомнатной квартиры и почерпнуть приемы для создания в маленькой квартире приятной, расслабляющей обстановки можно в этом видео:
3. Комфортная классика: дизайн однокомнатной квартиры 35 кв.м
Главным преимуществом дизайна этой однокомнатной квартиры является наличие камина в зоне гостиной, полноценного спального места в нише и кухни с большой обеденной зоной.

Встроенные шкафы в комнате со стильными зеркальными дверцами с черным багетом подчеркивают аристократическую стилистику интерьера.

Кроме шкафов в комнате, дополнительные встроенные шкафы также размещены в прихожей. И, как видно на плане квартиры, они достаточно вместительные.

4. Оригинальный дизайн однушки для молодой пары 40 кв.м
Уютная и стильная однокомнатная квартира включает в себя достаточно большую кухню-столовую и спальню-кабинет.

Расположенная на подиуме за диваном кровать отделена от кабинета стеклянной перегородкой.

Места для хранения в этой квартире предусмотрены как в спальной зоне: просторный шифоньер и ящики подиума, так и выручает удобная гардеробная в прихожей.

Интересные детали и дизайнерские решения для этой квартиры приведены в видео:
5. Дизайн однокомнатной квартиры 40 кв.м в стиле лофт
Т.к. эта однокомнатная квартира предназначалась под аренду, задача стояла сделать стильный ремонт недорого. Немаловажной деталью было пожелание максимального использования анивандальных покрытий, чтобы не приходилось полностью делать свежий ремонт после каждого жильца.

Эта задача была решена использованием декоративной штукатурки под кирпич и бетон в сочетании с золотыми блестящими акцентами в мебели и светильниках.

Большое панорамное око в пол в зоне гостиной, позволяет безболезненно разместить кровать в нише за стеклянной перегородкой. Света достаточно и этот традиционный элемент скандинавского стиля только добавляет изюминку этому модному интерьеру.

Как видно на плане, в этой маленькой квартире достаточно мест для хранения – большой шкаф в спальне дополняет вместительная кладовая между кухней и санузлом. Место для верхней одежды предусмотрено в небольшой нише около входной двери.

Какие приемы урбанистического стиля позволят вам создать свой ультра современный дизайн вы можете подсмотреть в этом видео:
Желаем вам создать в своей квартире идеальный дизайн – гармоничное,удобное пространство, продуманное до мельчайших деталей и приносящее вам радость.

Если вам понравилась статья, напишите об этом в комментариях, и мы подготовим такие темы для вас на регулярной основе.
Источник
killtime.su